Trove Homes logoTrove Homes
Floor Plans
Property Map
Dealers
Blog
Vogue ii hero, exterior, and elevation home features

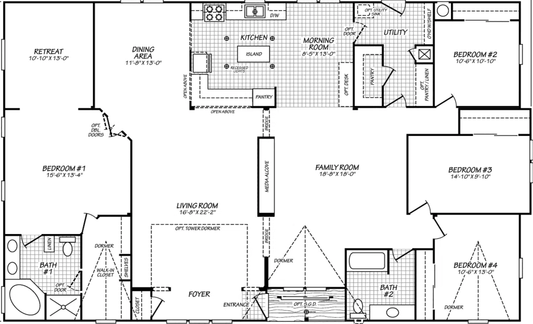
Vogue ii floor plan home features

Vogue II series

Vogue II standard features

Design Options

Exterior & Construction

  • Insulation: R 28-11-11
  • Plant-on Dormer (model specific)
  • 4” Choice Window Trim T/O
  • 10” Choice Trim Fascia
  • Front Eyebrow, Col., and Lap (model specific)
  • LP Smart Vertical Siding
  • 9’ sidewalls with Flat Ceiling *
  • Transom Windows Throughout *
  • Roof Pitch 3:12 (2:12 on triple section homes)
  • 20LB Roof Load
  • 12" Front and Rear Overhang
  • Trimline Ventilated Roof System
  • Front Airfoil
  • Insulation: R 28-11-11
  • Plant-on Dormer (model specific)
  • 4” Choice Window Trim T/O
  • 10” Choice Trim Fascia
  • Front Eyebrow, Col., and Lap (model specific)
  • LP Smart Vertical Siding
  • 9’ sidewalls with Flat Ceiling *
  • Transom Windows Throughout *
  • Roof Pitch 3:12 (2:12 on triple section homes)
Vogue II standard features

Mechanical

  • 100 AMP Service
  • Interior Panel Box
  • 40 Gal. Gas Water Heater & 56 BTU Furnace
  • Plumb/Wire for Washer & Gas Dryer
  • Rocker Switches T/O
  • Dual USB Recept- Kitchen
  • Shut Off Valves T/O
  • Toe Kick Registers in Wet Areas
  • (1) Wire & Brace
  • 100 AMP Service
  • Interior Panel Box
  • 40 Gal. Gas Water Heater & 56 BTU Furnace
  • Plumb/Wire for Washer & Gas Dryer
  • Rocker Switches T/O
  • Dual USB Recept- Kitchen
  • Shut Off Valves T/O
  • Toe Kick Registers in Wet Areas
  • (1) Wire & Brace

Exterior

  • Insulation: R 28-11-11
  • Plant-on Dormer (model specific)
  • 4” Choice Window Trim T/O
  • 10” Choice Trim Fascia
  • Front Eyebrow, Col., and Lap (model specific)
  • LP Smart Vertical Siding
  • 9’ sidewalls with Flat Ceiling *
  • Transom Windows Throughout *
  • Roof Pitch 3:12 (2:12 on triple section homes)
  • 20LB Roof Load
  • 12" Front and Rear Overhang
  • Trimline Ventilated Roof System
  • Front Airfoil
  • Insulation: R 28-11-11
  • Plant-on Dormer (model specific)
  • 4” Choice Window Trim T/O
  • 10” Choice Trim Fascia
  • Front Eyebrow, Col., and Lap (model specific)
  • LP Smart Vertical Siding
  • 9’ sidewalls with Flat Ceiling *
  • Transom Windows Throughout *
  • Roof Pitch 3:12 (2:12 on triple section homes)
  • 20LB Roof Load

Interior

  • Knockdown Ceiling
  • Tape and Texture T/O & Bullnose Corners Alt. 2”Faux
  • Wood Blinds T/O (Standard Height)
  • 2” Door Casing & Baseboard Molding
  • Upgrade Carpet Pad
  • 25oz. Carpet – Shake It Up
  • Wood Shelves with Rod in Closets
  • Linoleum Entry
  • (4) 4” LED Can Lights
  • Craftsman Style Front Entry Door
  • 36” 9-Lite Inswing Rear Door
  • Vinyl D/G, Low-E, Tempered Glass Windows T/O
  • 2-Panel Interior Doors T/O
  • Furnace Door –Louvered
  • Ventilated Window – Both Baths
  • (3) Mortised Hinges & Lever Interior Handles
  • 2-Panel Sliding Wardrobe Doors (model specific)
  • Laminate C-Tops T/O
  • Straight Hardwood Panel Cabinet Doors
  • Drawers over Doors
  • Drawer Bank – Kitchen & Master Bath (4)
  • 2 Door O/H Utility w/ Shelf & Pole
  • Lip Molding Under Overhead Cabinets

Bathroom

  • Glamour Bath w/ Oval Drop-in Tub & 48" Shower
  • Ceramic 4" B/splash (Includes tub deck if applicable)
  • Mirrored Medicine Cabinet
  • Porcelain Lavy Bowl
  • Single Lever Faucet & Diverter - Nickel
  • Nickel Towel Bar & Tissue Holder
  • Elongated Raised Toilet
  • 36” High Vanity
  • (2) 4” LED Can Lights
  • Exhaust Fan
  • Ceramic 4" B/splash
  • Mirrored Medicine Cabinet
  • Porcelain Lavy Bowl
  • Single Lever Faucet & Diverter - Nickel
  • 1-Pc 60" Molded Fiberglass Tub/Shower
  • Nickel Towel Bar & Tissue Holder
  • Glamour Bath w/ Oval Drop-in Tub & 48" Shower
  • Ceramic 4" B/splash (Includes tub deck if applicable)
  • Mirrored Medicine Cabinet
  • Porcelain Lavy Bowl
  • Single Lever Faucet & Diverter - Nickel
  • Nickel Towel Bar & Tissue Holder
  • Elongated Raised Toilet

Kitchen

  • 8" Stainless Steel Sink
  • Full Height Ceramic Tile Backsplash
  • Full Height Ceramic Tile Backsplash-Behind Range
  • Stainless Steel Gas Freestanding Range w/ Range Hood
  • Stainless Steel Microwave Range Hood
  • Stainless Steel Dishwasher
  • Stainless Steel 25 CF SxS Refer w/Ice and Water
  • Dispenser Faucet w/Pullout Spout
  • Garbage Disposal
  • 8" Stainless Steel Sink
  • Full Height Ceramic Tile Backsplash
  • Full Height Ceramic Tile Backsplash-Behind Range
  • Stainless Steel Gas Freestanding Range w/ Range Hood
  • Stainless Steel Microwave Range Hood
  • Stainless Steel Dishwasher
  • Stainless Steel 25 CF SxS Refer w/Ice and Water
  • Dispenser Faucet w/Pullout Spout
  • Garbage Disposal
Trove Homes logo

Trove Homes

Affordable homes at your fingertips.

    Pages

    HomesMapSign upSign in

    Help

    Contact usTerms of ServicePrivacy Policy

    Get started with Trove Homes

    Find, design, and order your next home in a few clicks.

    Sign up

  • 12" Front and Rear Overhang
  • Trimline Ventilated Roof System
  • Front Airfoil
  • 24” Deep Cabinet over Refrigerator
  • White Lined Base and Overhead Cabinets
  • Crown & Lip Molding - Overhead Cabinets
  • Nickel “Bar” Cabinet Pulls
  • Concealed Soft-Close Cabinet Door Hinges
  • Side-mount Drawer Guides
  • Adjustable Shelves on All Kitchen Overheads
    • Knockdown Ceiling
    • Tape and Texture T/O & Bullnose Corners Alt. 2”Faux
    • Wood Blinds T/O (Standard Height)
    • 2” Door Casing & Baseboard Molding
    • Upgrade Carpet Pad
    • 25oz. Carpet – Shake It Up
    • Wood Shelves with Rod in Closets
    • Linoleum Entry
    • (4) 4” LED Can Lights
    • Craftsman Style Front Entry Door
    • 36” 9-Lite Inswing Rear Door
    • Vinyl D/G, Low-E, Tempered Glass Windows T/O
    • 2-Panel Interior Doors T/O
    • Furnace Door –Louvered
    • Ventilated Window – Both Baths
    • (3) Mortised Hinges & Lever Interior Handles
    • 2-Panel Sliding Wardrobe Doors (model specific)
    • Laminate C-Tops T/O
    • Straight Hardwood Panel Cabinet Doors
    • Drawers over Doors
    • Drawer Bank – Kitchen & Master Bath (4)
    • 2 Door O/H Utility w/ Shelf & Pole
    • Lip Molding Under Overhead Cabinets
    • 24” Deep Cabinet over Refrigerator
    • White Lined Base and Overhead Cabinets
    • Crown & Lip Molding - Overhead Cabinets
    • Nickel “Bar” Cabinet Pulls
    • Concealed Soft-Close Cabinet Door Hinges
    • Side-mount Drawer Guides
    • Adjustable Shelves on All Kitchen Overheads
  • 36” High Vanity
  • (2) 4” LED Can Lights
  • Exhaust Fan
  • Ceramic 4" B/splash
  • Mirrored Medicine Cabinet
  • Porcelain Lavy Bowl
  • Single Lever Faucet & Diverter - Nickel
  • 1-Pc 60" Molded Fiberglass Tub/Shower
  • Nickel Towel Bar & Tissue Holder
  • Dealer License #: DL1609773

    |
    Powered by BuildTrove.com
    1. Catalog
    2. Cavco Riverside (Fleetwood)
    3. Vogue II
  • 20LB Roof Load
  • 12" Front and Rear Overhang
  • Trimline Ventilated Roof System
  • Front Airfoil
  • Vogue ii hero, exterior, and elevation home features



    Images of homes are solely for illustrative purposes and should not be relied upon. Images may not accurately represent the actual condition of a home as constructed, and may contain options which are not standard on all homes.

    Listed homes

    View all homes
    See More Homes

    2 bedroom homes

    Vogue ii 24522f floor plan home features

    Vogue ii 24522f hero, elevation, and exterior home features

    Vogue II 24522F

    2 Bed | 2 Bath | 1,213 Sq. Ft. | 23' 4" x 52'

    View detailsDesign home
    Vogue ii 28642k floor plan home features

    Vogue ii 28642k hero, exterior, and elevation home features

    Vogue II 28642K

    2 Bed | 2 Bath | 1,649 Sq. Ft. | 26' 8" x 64'

    View details

    3 bedroom homes

    Vogue ii 28573l floor plan home features

    Vogue ii 28573l hero, exterior, and elevation home features

    Vogue II 28573L

    4 bedroom homes

    Vogue ii 40564k floor plan home features

    Vogue ii 40564k hero, exterior, and elevation home features

    Vogue II 40564K

    Design home

    3 Bed | 2 Bath | 1,510 Sq. Ft. | 26' 8" x 57' 4"

    View detailsDesign home
    Vogue ii 28573m floor plan home features

    Vogue ii 28573m hero, exterior, and elevation home features

    Vogue II 28573M

    3 Bed | 2 Bath | 1,510 Sq. Ft. | 26' 8" x 57' 4"

    View detailsDesign home
    Vogue ii 28603m floor plan home features

    Vogue ii 28603m hero, exterior, and elevation home features

    Vogue II 28603M

    3 Bed | 2 Bath | 1,600 Sq. Ft. | 26' 8" x 60'

    View detailsDesign home
    Vogue ii 30643k floor plan home features

    Vogue ii 30643k hero, exterior, and elevation home features

    Vogue II 30643K

    3 Bed | 2 Bath | 1,917 Sq. Ft. | 30' x 66'

    View detailsDesign home

    4 Bed | 2 Bath | 2,144 Sq. Ft. | 40' x 56'

    View detailsDesign home
    Vogue ii 40664b floor plan home features

    Vogue ii 40664b hero, exterior, and elevation home features

    Vogue II 40664B

    4 Bed | 2 Bath | 2,563 Sq. Ft. | 40' x 66'

    View detailsDesign home