Trove Homes logoTrove Homes
Floor Plans
Property Map
Dealers
Blog
Vogue ii 28573m hero, exterior, and elevation home features

Vogue II 28573M
3 Bed
2 Bath
1,510 Sq. Ft.
26' 8" x 57' 4"
3 Bed
2 Bath
1,510 Sq. Ft.
26' 8" x 57' 4"

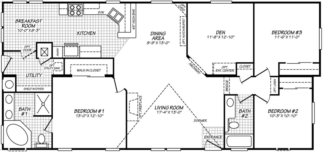
Floor Plan

    Vogue ii 28573m floor plan home features

    Property map

    Enter your address or APN to check if this home fits on your property

    Enter your property street address or APN

    Vogue II 28573M

    3 bedrooms

    2 full bathrooms

    1,510 sq. ft.

    26' 8" x 57' 4"

    See brochureStart your projectDesign home
    Vogue II standard features

    Mechanical

    • 100 AMP Service
    • Interior Panel Box
    • 40 Gal. Gas Water Heater & 56 BTU Furnace
    • Plumb/Wire for Washer & Gas Dryer
    • Rocker Switches T/O
    • Dual USB Recept- Kitchen
    • Shut Off Valves T/O
    • Toe Kick Registers in Wet Areas
    • (1) Wire & Brace
    • 100 AMP Service
    • Interior Panel Box
    • 40 Gal. Gas Water Heater & 56 BTU Furnace
    • Plumb/Wire for Washer & Gas Dryer
    • Rocker Switches T/O
    • Dual USB Recept- Kitchen
    • Shut Off Valves T/O
    • Toe Kick Registers in Wet Areas
    Trove Homes logo

    Trove Homes

    Affordable homes at your fingertips.

      Pages

      HomesMapSign upSign in

      Help

      Contact usTerms of ServicePrivacy Policy

      Get started with Trove Homes

      Find, design, and order your next home in a few clicks.

      Sign up


      Vogue II 28573M

      3 bedrooms

      2 full bathrooms

      1,510 sq. ft.

      26' 8" x 57' 4"

      See brochureStart your projectDesign home
    • (1) Wire & Brace
    • Exterior

      • Insulation: R 28-11-11
      • Plant-on Dormer (model specific)
      • 4” Choice Window Trim T/O
      • 10” Choice Trim Fascia
      • Front Eyebrow, Col., and Lap (model specific)
      • LP Smart Vertical Siding
      • 9’ sidewalls with Flat Ceiling *
      • Transom Windows Throughout *
      • Roof Pitch 3:12 (2:12 on triple section homes)
      • 20LB Roof Load
      • 12" Front and Rear Overhang
      • Trimline Ventilated Roof System
      • Front Airfoil
      • Insulation: R 28-11-11
      • Plant-on Dormer (model specific)
      • 4” Choice Window Trim T/O
      • 10” Choice Trim Fascia
      • Front Eyebrow, Col., and Lap (model specific)
      • LP Smart Vertical Siding
      • 9’ sidewalls with Flat Ceiling *
      • Transom Windows Throughout *
      • Roof Pitch 3:12 (2:12 on triple section homes)
      • 20LB Roof Load
      • 12" Front and Rear Overhang
      • Trimline Ventilated Roof System
      • Front Airfoil

      Interior

      • Knockdown Ceiling
      • Tape and Texture T/O & Bullnose Corners Alt. 2”Faux
      • Wood Blinds T/O (Standard Height)
      • 2” Door Casing & Baseboard Molding
      • Upgrade Carpet Pad
      • 25oz. Carpet – Shake It Up
      • Wood Shelves with Rod in Closets
      • Linoleum Entry
      • (4) 4” LED Can Lights
      • Craftsman Style Front Entry Door
      • 36” 9-Lite Inswing Rear Door
      • Vinyl D/G, Low-E, Tempered Glass Windows T/O
      • 2-Panel Interior Doors T/O
      • Furnace Door –Louvered
      • Ventilated Window – Both Baths
      • (3) Mortised Hinges & Lever Interior Handles
      • 2-Panel Sliding Wardrobe Doors (model specific)
      • Laminate C-Tops T/O
      • Straight Hardwood Panel Cabinet Doors
      • Drawers over Doors
      • Drawer Bank – Kitchen & Master Bath (4)
      • 2 Door O/H Utility w/ Shelf & Pole
      • Lip Molding Under Overhead Cabinets
      • 24” Deep Cabinet over Refrigerator
      • White Lined Base and Overhead Cabinets
      • Crown & Lip Molding - Overhead Cabinets
      • Nickel “Bar” Cabinet Pulls
      • Concealed Soft-Close Cabinet Door Hinges
      • Side-mount Drawer Guides
      • Adjustable Shelves on All Kitchen Overheads
      • Knockdown Ceiling
      • Tape and Texture T/O & Bullnose Corners Alt. 2”Faux
      • Wood Blinds T/O (Standard Height)
      • 2” Door Casing & Baseboard Molding
      • Upgrade Carpet Pad
      • 25oz. Carpet – Shake It Up
      • Wood Shelves with Rod in Closets
      • Linoleum Entry
      • (4) 4” LED Can Lights
      • Craftsman Style Front Entry Door
      • 36” 9-Lite Inswing Rear Door
      • Vinyl D/G, Low-E, Tempered Glass Windows T/O
      • 2-Panel Interior Doors T/O
      • Furnace Door –Louvered
      • Ventilated Window – Both Baths
      • (3) Mortised Hinges & Lever Interior Handles
      • 2-Panel Sliding Wardrobe Doors (model specific)
      • Laminate C-Tops T/O
      • Straight Hardwood Panel Cabinet Doors
      • Drawers over Doors
      • Drawer Bank – Kitchen & Master Bath (4)
      • 2 Door O/H Utility w/ Shelf & Pole
      • Lip Molding Under Overhead Cabinets
      • 24” Deep Cabinet over Refrigerator

      Bathroom

      • Glamour Bath w/ Oval Drop-in Tub & 48" Shower
      • Ceramic 4" B/splash (Includes tub deck if applicable)
      • Mirrored Medicine Cabinet
      • Porcelain Lavy Bowl
      • Single Lever Faucet & Diverter - Nickel
      • Nickel Towel Bar & Tissue Holder
      • Elongated Raised Toilet
      • 36” High Vanity
      • (2) 4” LED Can Lights
      • Exhaust Fan
      • Ceramic 4" B/splash
      • Mirrored Medicine Cabinet
      • Porcelain Lavy Bowl
      • Single Lever Faucet & Diverter - Nickel
      • 1-Pc 60" Molded Fiberglass Tub/Shower
      • Nickel Towel Bar & Tissue Holder
      • Glamour Bath w/ Oval Drop-in Tub & 48" Shower
      • Ceramic 4" B/splash (Includes tub deck if applicable)
      • Mirrored Medicine Cabinet
      • Porcelain Lavy Bowl
      • Single Lever Faucet & Diverter - Nickel
      • Nickel Towel Bar & Tissue Holder
      • Elongated Raised Toilet
      • 36” High Vanity
      • (2) 4” LED Can Lights
      • Exhaust Fan
      • Ceramic 4" B/splash
      • Mirrored Medicine Cabinet
      • Porcelain Lavy Bowl
      • Single Lever Faucet & Diverter - Nickel
      • 1-Pc 60" Molded Fiberglass Tub/Shower
      • Nickel Towel Bar & Tissue Holder

      Kitchen

      • 8" Stainless Steel Sink
      • Full Height Ceramic Tile Backsplash
      • Full Height Ceramic Tile Backsplash-Behind Range
      • Stainless Steel Gas Freestanding Range w/ Range Hood
      • Stainless Steel Microwave Range Hood
      • Stainless Steel Dishwasher
      • Stainless Steel 25 CF SxS Refer w/Ice and Water
      • Dispenser Faucet w/Pullout Spout
      • Garbage Disposal
      • 8" Stainless Steel Sink
      • Full Height Ceramic Tile Backsplash
      • Full Height Ceramic Tile Backsplash-Behind Range
      • Stainless Steel Gas Freestanding Range w/ Range Hood
      • Stainless Steel Microwave Range Hood
      • Stainless Steel Dishwasher
      • Stainless Steel 25 CF SxS Refer w/Ice and Water
      • Dispenser Faucet w/Pullout Spout
      • Garbage Disposal

      Dealer License #: DL1609773

      |
      Powered by BuildTrove.com
      1. Catalog
      2. Vogue II
      3. Vogue II 28573M

      Exterior & Construction

      • Insulation: R 28-11-11
      • Plant-on Dormer (model specific)
      • 4” Choice Window Trim T/O
      • 10” Choice Trim Fascia
      • Front Eyebrow, Col., and Lap (model specific)
      • LP Smart Vertical Siding
      • 9’ sidewalls with Flat Ceiling *
      • Transom Windows Throughout *
      • Roof Pitch 3:12 (2:12 on triple section homes)
      • 20LB Roof Load
      • 12" Front and Rear Overhang
      • Trimline Ventilated Roof System
      • Front Airfoil
      • Insulation: R 28-11-11
      • Plant-on Dormer (model specific)
      • 4” Choice Window Trim T/O
      • 10” Choice Trim Fascia
      • Front Eyebrow, Col., and Lap (model specific)
      • LP Smart Vertical Siding
      • 9’ sidewalls with Flat Ceiling *
      • Transom Windows Throughout *
      • Roof Pitch 3:12 (2:12 on triple section homes)
    • White Lined Base and Overhead Cabinets
    • Crown & Lip Molding - Overhead Cabinets
    • Nickel “Bar” Cabinet Pulls
    • Concealed Soft-Close Cabinet Door Hinges
    • Side-mount Drawer Guides
    • Adjustable Shelves on All Kitchen Overheads
    • 20LB Roof Load
    • 12" Front and Rear Overhang
    • Trimline Ventilated Roof System
    • Front Airfoil
    • Vogue ii 28573m hero, exterior, and elevation home features



      Images of homes are solely for illustrative purposes and should not be relied upon. Images may not accurately represent the actual condition of a home as constructed, and may contain options which are not standard on all homes.

      View similar homes