Trove Homes logoTrove Homes
Floor Plans
Property Map
Dealers
Blog
Canyon lake hero, exterior, and elevation home features

Canyon lake floor plan home features

Canyon Lake series

Canyon Lake standard features

Design Options

Exterior & Construction

  • Insulation R:21-11-11 (Double Wide’s)
  • R:28-11-11 (Single Wide’s)
  • 4” LP Window Trim & Corner Trim
  • LP Fascia
  • LP Vertical Siding
  • 7’6” Sidewalls with Vaulted Ceiling
  • Roof Pitch 3:12 (Double Wide’s)
  • 4:12 (Single Wide’s)
  • 20LB Roof Load
  • 12” Front Overhang (Hitch)
  • Front Airfoil
  • Eaves - Single Wide - None (STD), 4", 6", 12" Side Eaves (Optional)
  • Eaves - 19’8” & 23’4” Wide - None (STD), 6", 12" Side Eaves (Optional)
  • Eaves - 26’8” Wide - 6” Side Eave (Standard), 12” Side Eaves (Optional)
  • Eaves - 30’0” Wide - 6” Side Eaves
  • 36” 6-Panel - Front Door
  • 36” 6-Panel - Rear Door
  • Vinyl D/G, Low-E, Tempered Glass Windows T/O
  • Raised 2-Panel Interior Doors T/O
  • (2) Mortised Hinges-Nickel
  • Tulip Interior knobs-Nickel
Canyon Lake standard features

Mechanical

  • 100 Amp Service
  • Interior Panel Box
  • 29 Gallon Gas Water Heater
  • 56 BTU Gas Furnace
  • Plumb/Wire for Washer & Gas Dryer
  • Rocker Switches T/O
  • Dual USB Recept-Kitchen
  • Shut Off Valves T/O
  • *Toe Kick Registers in Wet Areas
  • 100 Amp Service
  • Interior Panel Box
  • 29 Gallon Gas Water Heater
  • 56 BTU Gas Furnace
  • Plumb/Wire for Washer & Gas Dryer
  • Rocker Switches T/O
  • Dual USB Recept-Kitchen
  • Shut Off Valves T/O
  • *Toe Kick Registers in Wet Areas

Exterior

  • Insulation R:21-11-11 (Double Wide’s)
  • R:28-11-11 (Single Wide’s)
  • 4” LP Window Trim & Corner Trim
  • LP Fascia
  • LP Vertical Siding
  • 7’6” Sidewalls with Vaulted Ceiling
  • Roof Pitch 3:12 (Double Wide’s)
  • 4:12 (Single Wide’s)
  • 20LB Roof Load
  • 12” Front Overhang (Hitch)
  • Front Airfoil
  • Eaves - Single Wide - None (STD), 4", 6", 12" Side Eaves (Optional)
  • Eaves - 19’8” & 23’4” Wide - None (STD), 6", 12" Side Eaves (Optional)
  • Eaves - 26’8” Wide - 6” Side Eave (Standard), 12” Side Eaves (Optional)
  • Eaves - 30’0” Wide - 6” Side Eaves
  • Insulation R:21-11-11 (Double Wide’s)
  • R:28-11-11 (Single Wide’s)
  • 4” LP Window Trim & Corner Trim
  • LP Fascia
  • LP Vertical Siding
  • 7’6” Sidewalls with Vaulted Ceiling
  • Roof Pitch 3:12 (Double Wide’s)
  • 4:12 (Single Wide’s)

Interior

  • Laminate Countertops- Kitchen & Baths
  • *Straight Hardwood Panel Cabinet Doors
  • Island-Kitchen (Model Specific)
  • (1) Drawer Bank- Kitchen
  • Wire Utility Shelf
  • Lip Molding Under Overhead Cabinets
  • 12” Deep Shelf over Refrigerator
  • White Lined Base & O’hd Cabinets
  • Square Crown Molding- O’hd Cabinets
  • Cabinet Hardware-Nickel Round Knobs
  • Concealed Soft-Close Cabinet Door Hinges
  • Side-mount Soft Close Drawer Guides
  • Adjustable Shelves on all O’hd Cabinets
  • Knockdown Ceiling
  • Tape & Texture T/O & Square Corners
  • 1” Blinds Throughout
  • *Square 2” Door Casing T/O
  • *Square 5” Baseboard T/O
  • Rebound Carpet Pad
  • Carpet- Shaw ”Edgewater”-LR & BRs
  • Wire Shelves in Closets
  • *4” LED Can Lights- (5) Kitchen, (1) Hall, Walk-in closet (if applicable)
  • *Ceiling Lights-Bedrooms, Bathrooms, & Living Room

Kitchen

  • 8” Stainless Steel Sink
  • 4” Laminate Backsplash
  • White 30” Gas Free Standing Range
  • White 30” Range Hood
  • White 18.1 CF Refrigerator
  • Faucet w/ Pull Out Sprayer-Brushed Nickel
  • *Garbage Disposal
  • 8” Stainless Steel Sink
  • 4” Laminate Backsplash
  • White 30” Gas Free Standing Range
  • White 30” Range Hood
  • White 18.1 CF Refrigerator
  • Faucet w/ Pull Out Sprayer-Brushed Nickel
  • *Garbage Disposal

Bathroom

  • 60” 1-PC Fiberglass Tub/Shower
  • 4” Laminate Backsplash
  • *Mirrored Medicine Cabinet
  • Porcelain Lavy Bowl
  • Single Lever Faucet & Diverter-Nickel
  • Nickel Towel Bar & Tissue Holder
  • Handicap Toilet
  • 36” High Vanity - Master
  • 30" High Vanity - Guest
  • (1) Vanity Light
  • Exhaust Fan
  • 60” 1-PC Fiberglass Tub/Shower
  • 4” Laminate Backsplash
  • *Mirrored Medicine Cabinet
  • Porcelain Lavy Bowl
  • Single Lever Faucet & Diverter-Nickel
  • Nickel Towel Bar & Tissue Holder
  • Handicap Toilet
  • 36” High Vanity - Master
  • 30" High Vanity - Guest
  • (1) Vanity Light
  • Exhaust Fan

Construction

  • 36” 6-Panel - Front Door
  • 36” 6-Panel - Rear Door
  • Vinyl D/G, Low-E, Tempered Glass Windows T/O
  • Raised 2-Panel Interior Doors T/O
  • (2) Mortised Hinges-Nickel
  • Tulip Interior knobs-Nickel
  • 36” 6-Panel - Front Door
  • 36” 6-Panel - Rear Door
  • Vinyl D/G, Low-E, Tempered Glass Windows T/O
  • Raised 2-Panel Interior Doors T/O
  • (2) Mortised Hinges-Nickel
  • Tulip Interior knobs-Nickel
Trove Homes logo

Trove Homes

Affordable homes at your fingertips.

    Pages

    HomesMapSign upSign in

    Help

    Contact usTerms of ServicePrivacy Policy

    Get started with Trove Homes

    Find, design, and order your next home in a few clicks.

    Sign up

  • 20LB Roof Load
  • 12” Front Overhang (Hitch)
  • Front Airfoil
  • Eaves - Single Wide - None (STD), 4", 6", 12" Side Eaves (Optional)
  • Eaves - 19’8” & 23’4” Wide - None (STD), 6", 12" Side Eaves (Optional)
  • Eaves - 26’8” Wide - 6” Side Eave (Standard), 12” Side Eaves (Optional)
  • Eaves - 30’0” Wide - 6” Side Eaves
  • Watson 3 Light Chandelier-Dining Room
  • Interior Paint- Spare White (Washable Flat)
    • Laminate Countertops- Kitchen & Baths
    • *Straight Hardwood Panel Cabinet Doors
    • Island-Kitchen (Model Specific)
    • (1) Drawer Bank- Kitchen
    • Wire Utility Shelf
    • Lip Molding Under Overhead Cabinets
    • 12” Deep Shelf over Refrigerator
    • White Lined Base & O’hd Cabinets
    • Square Crown Molding- O’hd Cabinets
    • Cabinet Hardware-Nickel Round Knobs
    • Concealed Soft-Close Cabinet Door Hinges
    • Side-mount Soft Close Drawer Guides
    • Adjustable Shelves on all O’hd Cabinets
    • Knockdown Ceiling
    • Tape & Texture T/O & Square Corners
    • 1” Blinds Throughout
    • *Square 2” Door Casing T/O
    • *Square 5” Baseboard T/O
    • Rebound Carpet Pad
    • Carpet- Shaw ”Edgewater”-LR & BRs
    • Wire Shelves in Closets
    • *4” LED Can Lights- (5) Kitchen, (1) Hall, Walk-in closet (if applicable)
    • *Ceiling Lights-Bedrooms, Bathrooms, & Living Room
    • Watson 3 Light Chandelier-Dining Room
    • Interior Paint- Spare White (Washable Flat)

    Dealer License #: DL1609773

    |
    Powered by BuildTrove.com
    1. Catalog
    2. Cavco Riverside (Fleetwood)
    3. Canyon Lake
  • Insulation R:21-11-11 (Double Wide’s)
  • R:28-11-11 (Single Wide’s)
  • 4” LP Window Trim & Corner Trim
  • LP Fascia
  • LP Vertical Siding
  • 7’6” Sidewalls with Vaulted Ceiling
  • Roof Pitch 3:12 (Double Wide’s)
  • 4:12 (Single Wide’s)
  • 20LB Roof Load
  • 12” Front Overhang (Hitch)
  • Front Airfoil
  • Eaves - Single Wide - None (STD), 4", 6", 12" Side Eaves (Optional)
  • Eaves - 19’8” & 23’4” Wide - None (STD), 6", 12" Side Eaves (Optional)
  • Eaves - 26’8” Wide - 6” Side Eave (Standard), 12” Side Eaves (Optional)
  • Eaves - 30’0” Wide - 6” Side Eaves
  • 36” 6-Panel - Front Door
  • 36” 6-Panel - Rear Door
  • Vinyl D/G, Low-E, Tempered Glass Windows T/O
  • Raised 2-Panel Interior Doors T/O
  • (2) Mortised Hinges-Nickel
  • Tulip Interior knobs-Nickel
  • Canyon lake hero, exterior, and elevation home features



    Images of homes are solely for illustrative purposes and should not be relied upon. Images may not accurately represent the actual condition of a home as constructed, and may contain options which are not standard on all homes.

    Listed homes

    View all homes
    See More Homes

    400 - 750 sq. ft.

    Canyon lake 12482l floor plan home features

    Canyon lake 12482l hero, exterior, and elevation home features

    Canyon Lake 12482L

    2 Bed | 1 Bath | 560 Sq. Ft. | 11' 8" x 48'

    View detailsDesign home
    Canyon lake 14482b floor plan home features

    Canyon lake 14482b exterior, elevation, and hero home features

    Canyon Lake 14482B

    2 Bed | 1 Bath | 639 Sq. Ft. | 13' 4" x 48'

    View details
    Breeze floor plan home features

    Breeze hero, exterior, and elevation home features

    Breeze

    2 Bed | 1 Bath | 693 Sq. Ft. | 13' 4" x 52'

    View details

    750 - 1,200 sq. ft.

    Canyon lake 15562x floor plan home features

    Canyon lake 15562x hero, exterior, and elevation home features

    Canyon Lake 15562X

    3 bedroom homes

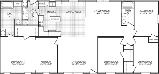
    Canyon lake 24563l floor plan home features

    Canyon lake 24563l hero, exterior, and elevation home features

    Canyon Lake 24563L

    4 bedroom homes

    Canyon lake 24564a floor plan home features

    Canyon lake 24564a hero, exterior, and elevation home features

    Canyon Lake 24564A

    Design home
    Design home

    2 Bed | 2 Bath | 840 Sq. Ft. | 15' x 56'

    View detailsDesign home
    Canyon lake 20442l floor plan home features

    Canyon lake 20442l hero, elevation, and exterior home features

    Canyon Lake 20442L

    2 Bed | 2 Bath | 865 Sq. Ft. | 19' 8" x 44'

    View detailsDesign home
    Canyon lake 15662c floor plan home features

    Canyon lake 15662c hero, exterior, and elevation home features

    Canyon Lake 15662C

    2 Bed | 2 Bath | 990 Sq. Ft. | 15' x 66'

    View detailsDesign home
    Canyon lake 20563k floor plan home features

    Canyon lake 20563k hero, exterior, and elevation home features

    Canyon Lake 20563K

    3 Bed | 2 Bath | 1,021 Sq. Ft. | 19' 8" x 56'

    View detailsDesign home
    Canyon lake 20522f floor plan home features

    Canyon lake 20522f hero, exterior, and elevation home features

    Canyon Lake 20522F

    2 Bed | 2 Bath | 1,022 Sq. Ft. | 19' 8" x 52'

    View detailsDesign home
    Canyon lake 24443x floor plan home features

    Canyon lake 24443x hero, exterior, and elevation home features

    Canyon Lake 24443X

    3 Bed | 2 Bath | 1,026 Sq. Ft. | 23' 4" x 44'

    View detailsDesign home
    Canyon lake 24443d floor plan home features

    Canyon lake 24443d hero, exterior, and elevation home features

    Canyon Lake 24443D

    3 Bed | 2 Bath | 1,026 Sq. Ft. | 23' 4" x 44'

    View detailsDesign home
    Canyon lake 24502k floor plan home features

    Canyon lake 24502k hero, exterior, and elevation home features

    Canyon Lake 24502K

    3 Bed | 2 Bath | 1,108 Sq. Ft. | 23' 4" x 50'

    View detailsDesign home
    Canyon lake 24483e floor plan home features

    Canyon lake 24483e hero, exterior, and elevation home features

    Canyon Lake 24483E

    3 Bed | 2 Bath | 1,120 Sq. Ft. | 23' 4" x 48'

    View detailsDesign home
    Canyon lake 24563p floor plan home features

    Canyon lake 24563p hero, exterior, and elevation home features

    Canyon Lake 24563P

    3 Bed | 2 Bath | 1,166 Sq. Ft. | 23' 4" x 56'

    View detailsDesign home

    3 Bed | 2 Bath | 1,307 Sq. Ft. | 23' 4" x 56'

    View detailsDesign home
    Canyon lake 28563g floor plan home features

    Canyon lake 28563g hero, exterior, and elevation home features

    Canyon Lake 28563G

    3 Bed | 2 Bath | 1,445 Sq. Ft. | 26' 8" x 56'

    View detailsDesign home
    Canyon lake 28563f floor plan home features

    Canyon lake 28563f hero, exterior, and elevation home features

    Canyon Lake 28563F

    3 Bed | 2 Bath | 1,492 Sq. Ft. | 28' x 56'

    View detailsDesign home
    Canyon lake 30563k floor plan home features

    Canyon lake 30563k hero, exterior, and elevation home features

    Canyon Lake 30563K

    3 Bed | 2 Bath | 1,680 Sq. Ft. | 30' x 56'

    View detailsDesign home

    4 Bed | 2 Bath | 1,306 Sq. Ft. | 23' 4" x 56'

    View detailsDesign home
    Canyon lake 30664b floor plan home features

    Canyon lake 30664b hero, elevation, and exterior home features

    Canyon Lake 30664B

    4 Bed | 2 Bath | 1,980 Sq. Ft. | 30' x 66'

    View detailsDesign home