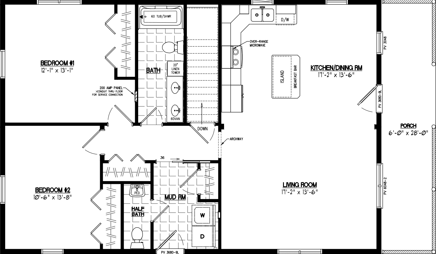
Homes | Settler 2842