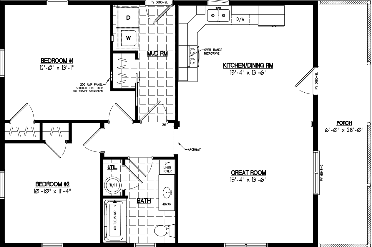
Homes | Settler 2836