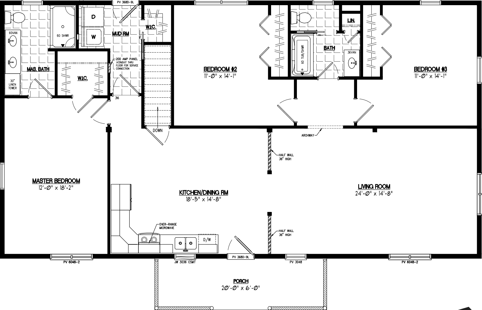
Homes | Pioneer 3056