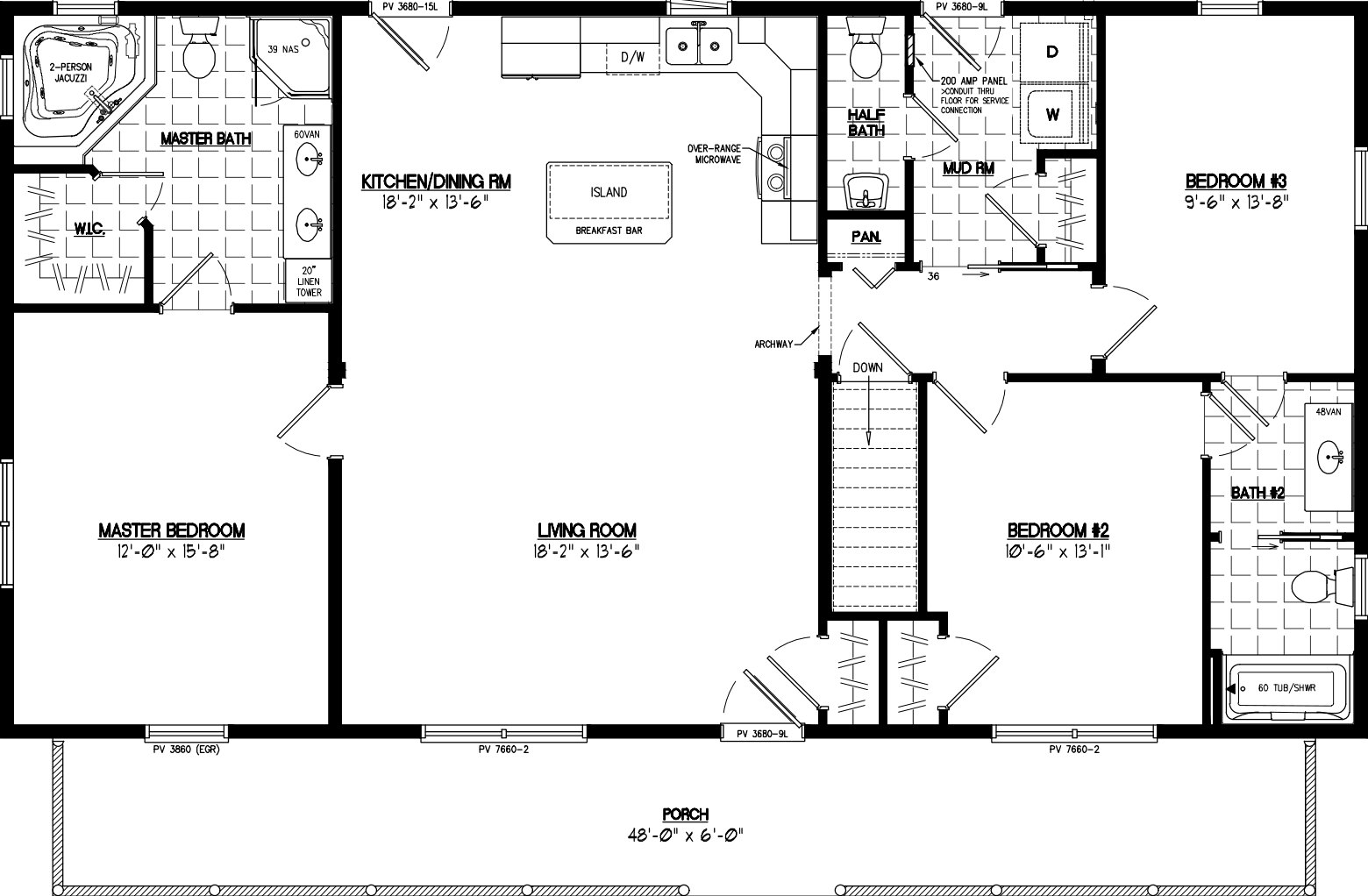
Homes | Musketeer 2852