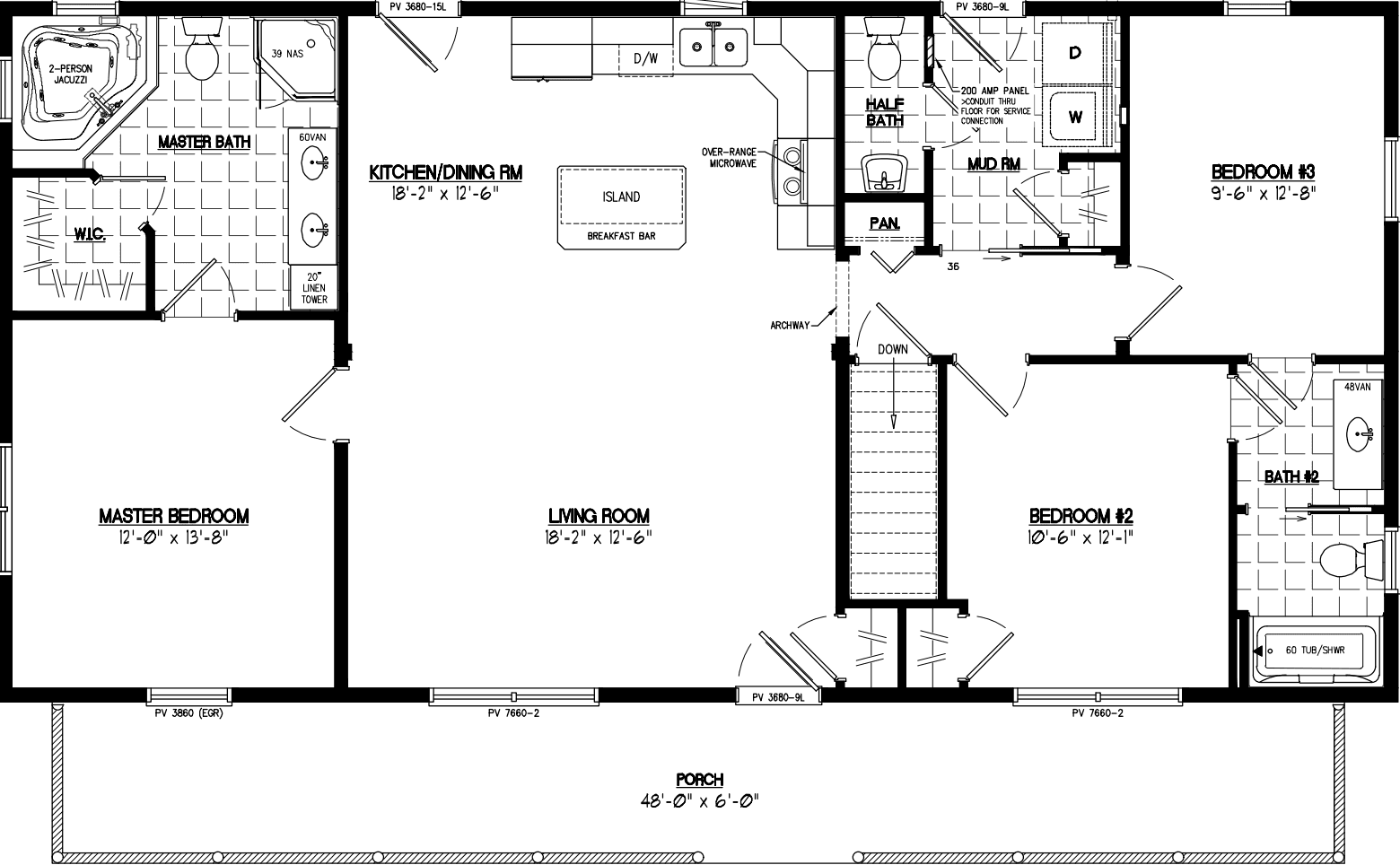
Homes | Musketeer 2652