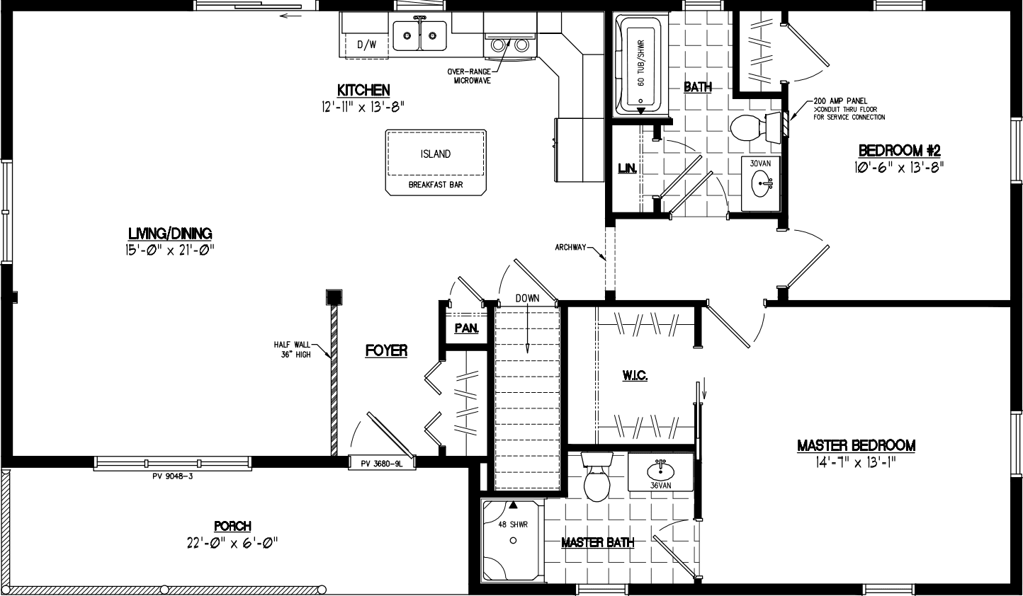
Homes | Frontier 2848