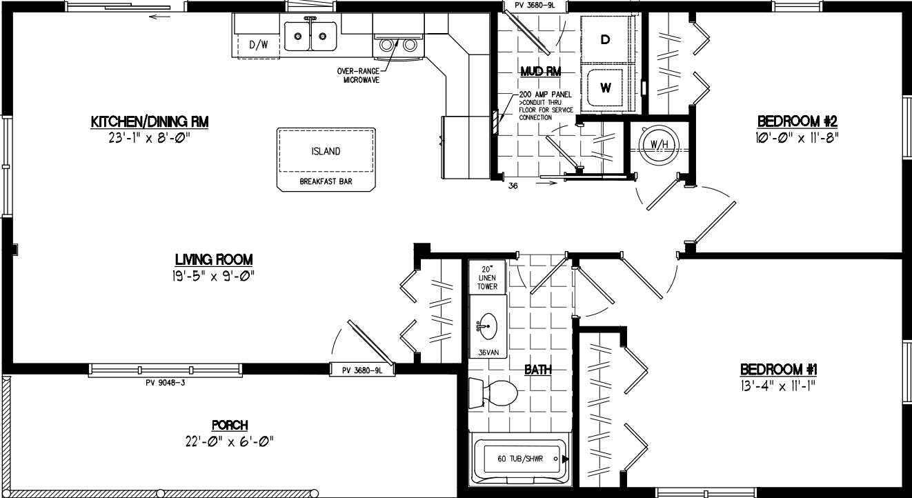
Homes | Frontier 2444