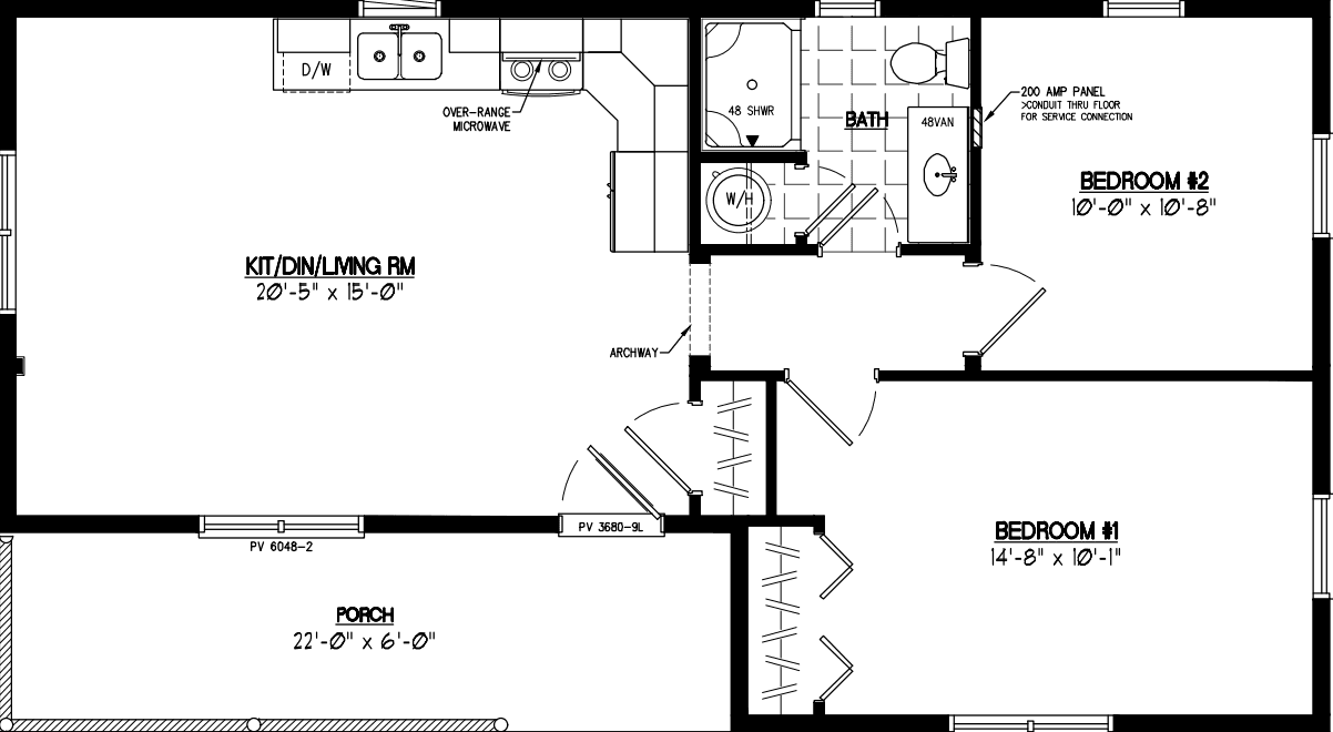
Homes | Frontier 2240