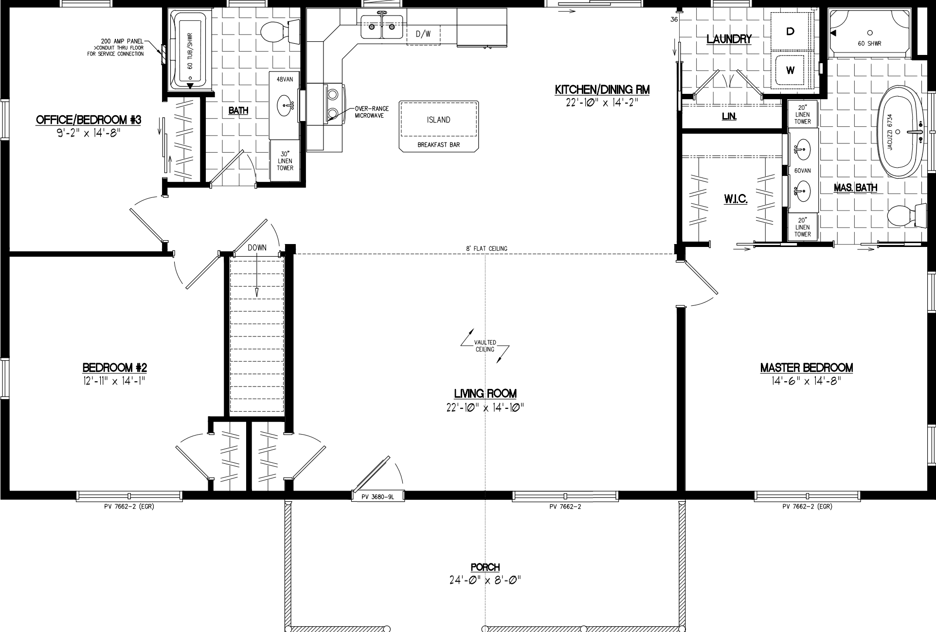
Homes | Alpine 3056