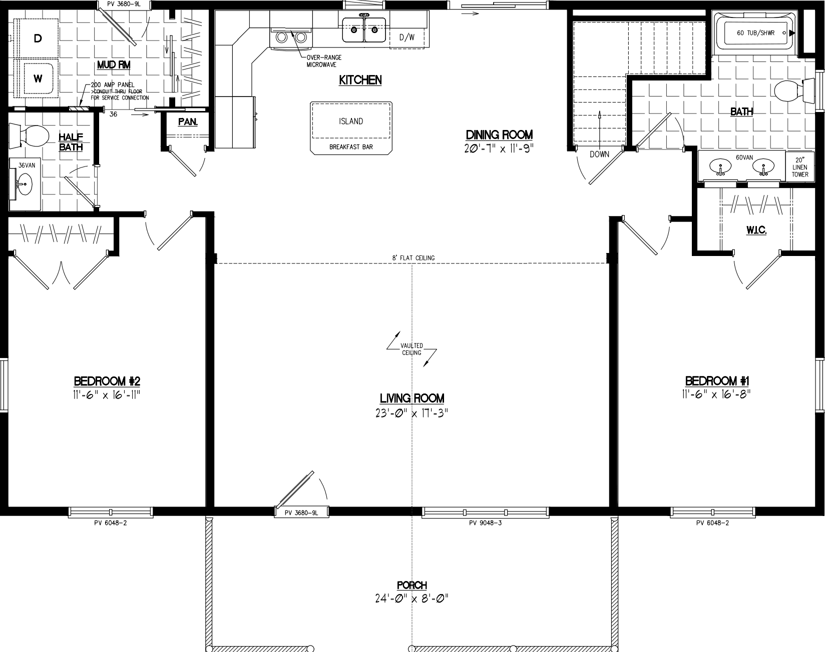
Homes | Alpine 3048 II