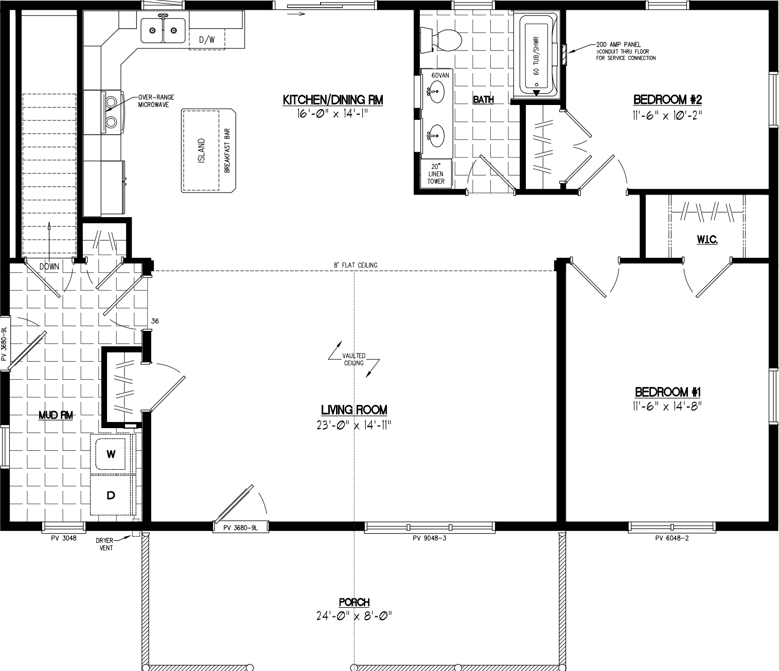
Homes | Alpine 3044