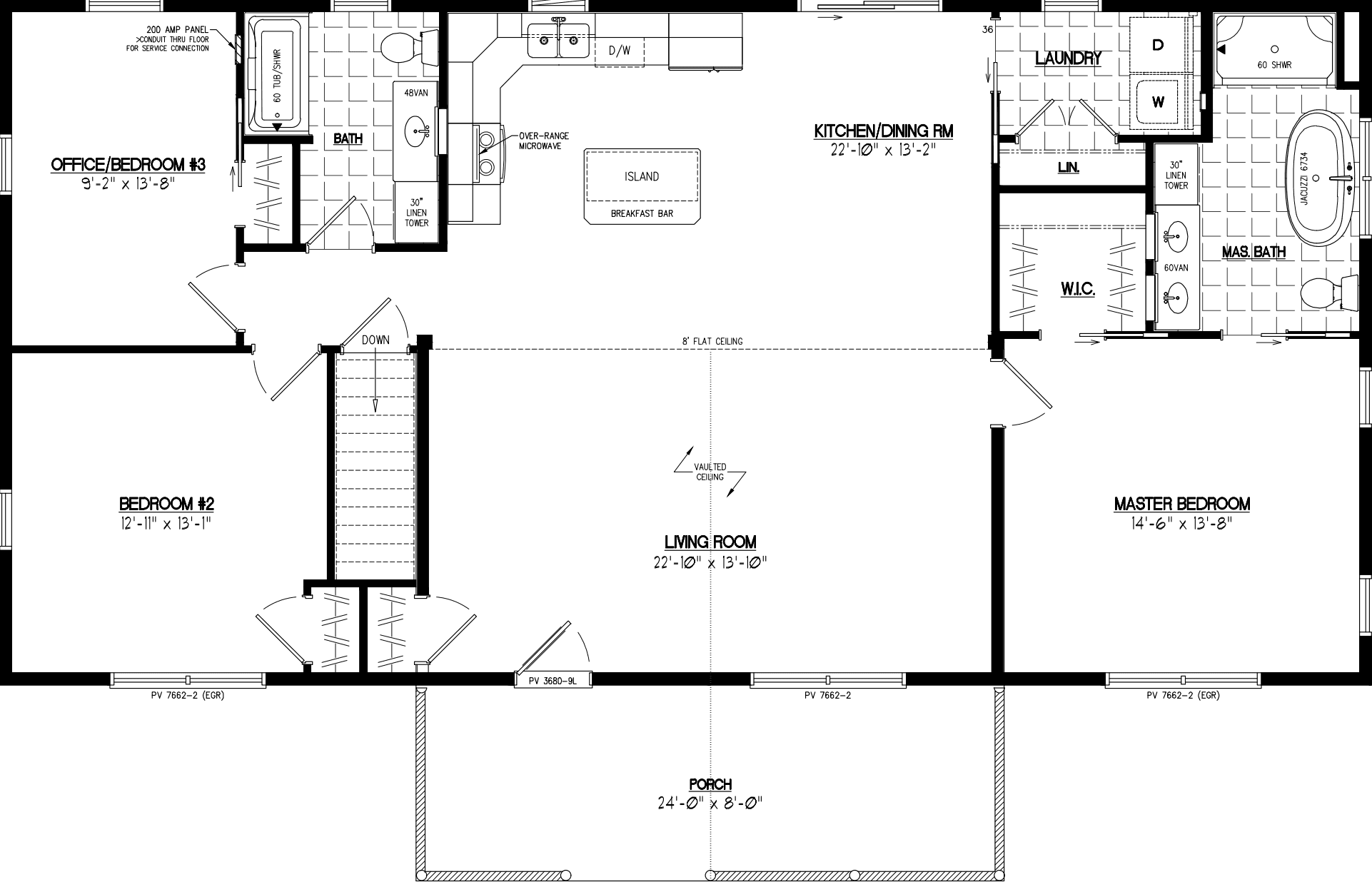
Homes | Alpine 2856