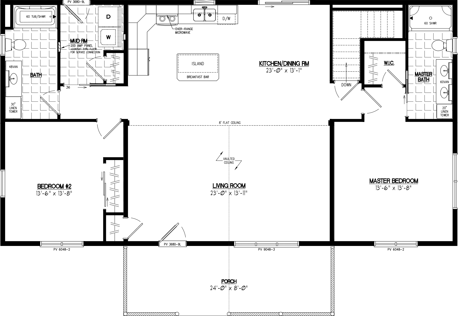
Homes | Alpine 2852