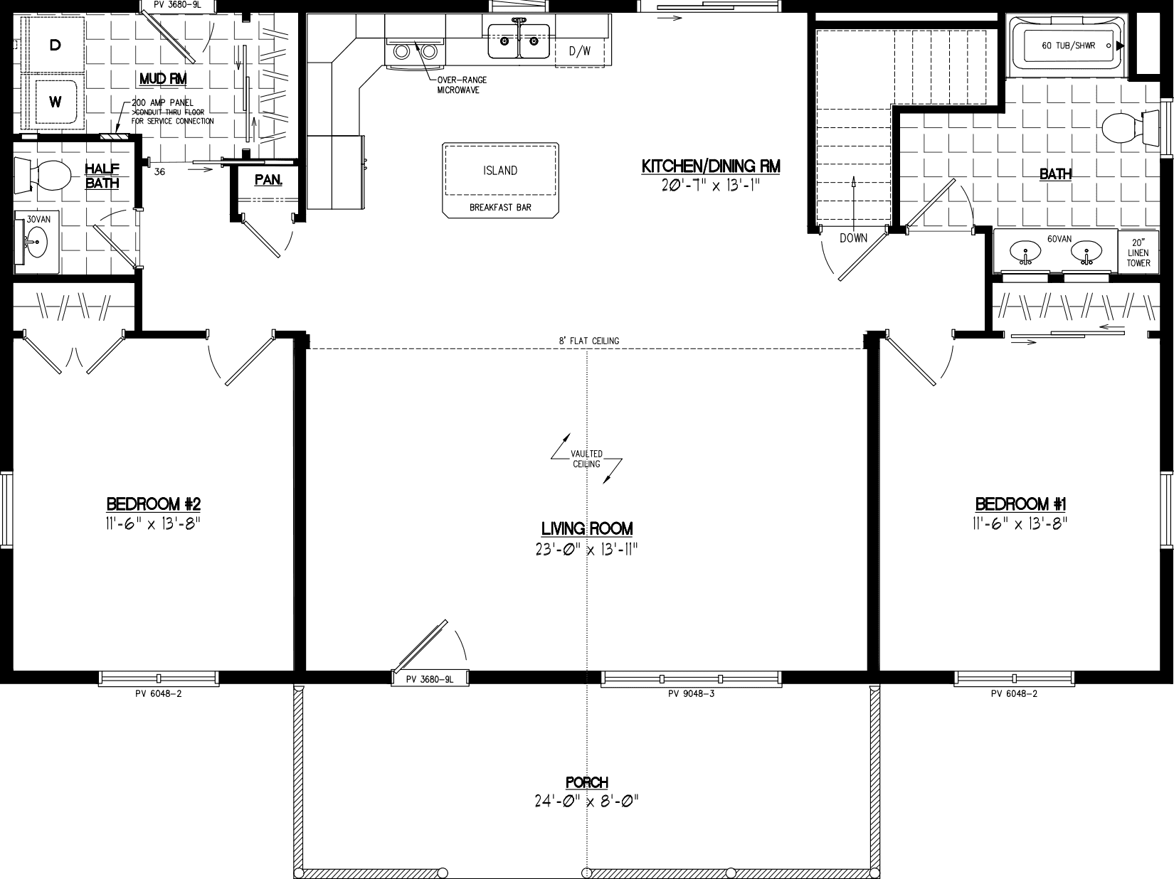
Homes | Alpine 2848 II