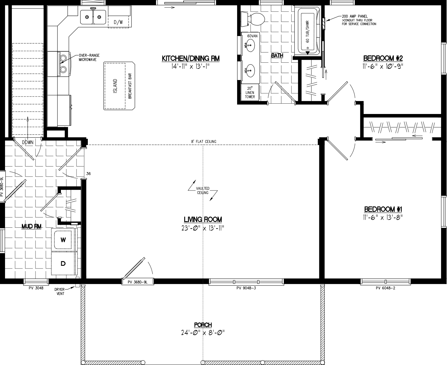
Homes | Alpine 2844