Sizes: Choose between all our log cabin models and then pick the size you want. Our log cabin sizes range from The Pioneer at 650 sq.ft. to The Glacier, The Canyon Lodge, and The Mountaineer Deluxe at 2,000 sq.ft.
Certified Modular Cabins: Our log cabins are fully engineered to your state & local building codes
Utilities: Fully wired, plumbed, and insulated to meet all state & local building codes
Engineer Certified Plans: Your New Log Home comes with a full set of engineered certified plans.
Sizes: Choose between all our log cabin models and then pick the size you want. Our log cabin sizes range from The Pioneer at 650 sq.ft. to The Glacier, The Canyon Lodge, and The Mountaineer Deluxe at 2,000 sq.ft.
Certified Modular Cabins: Our log cabins are fully engineered to your state & local building codes
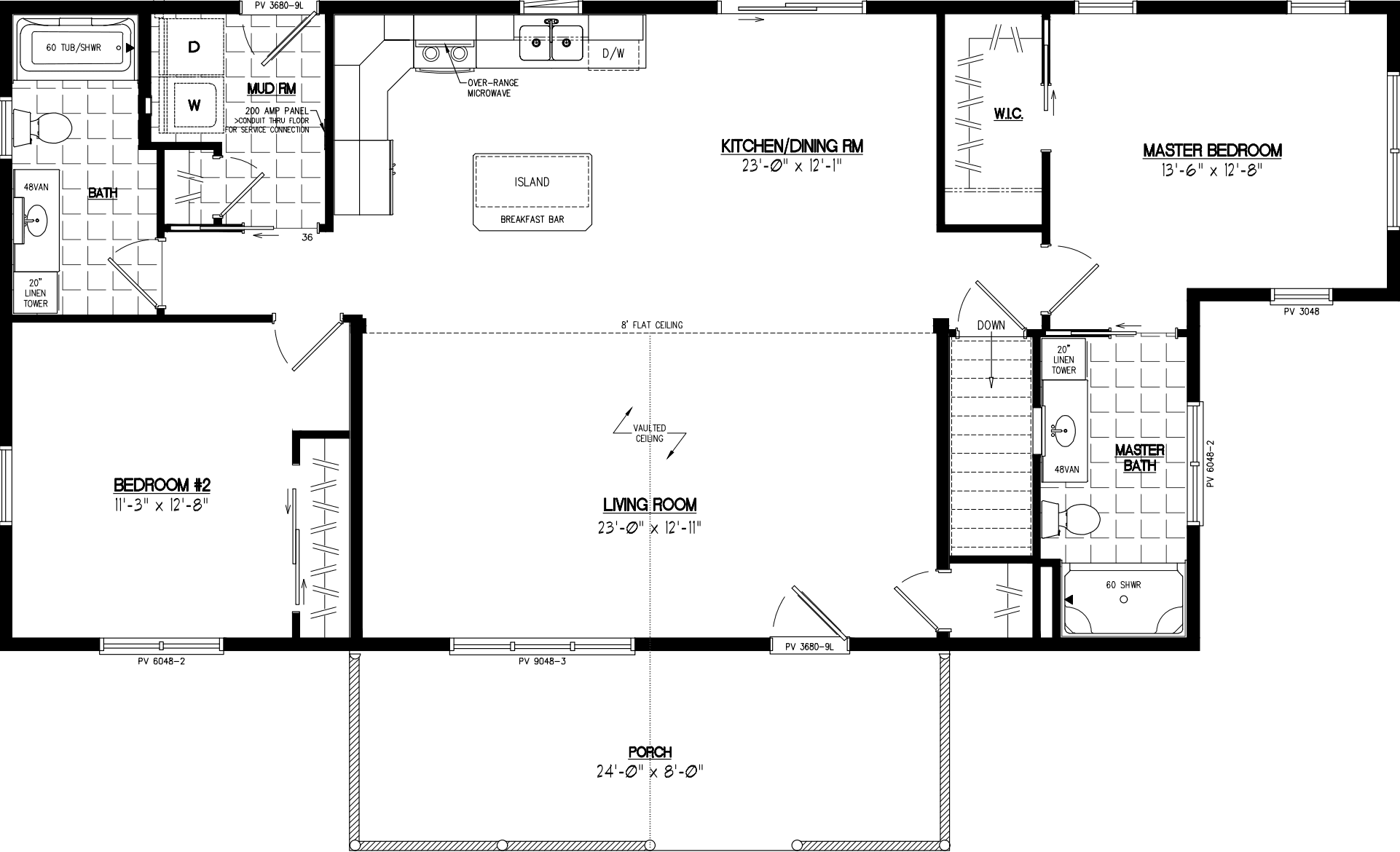
The Alpine Prefab Log Cabin is Zook Cabins’ only single-story cabin that also features a 15-foot vaulted ceiling in the living area. This feature allows for the incredible vista glass windows at the end of the living room, overlooking the front porch.
Property map
Enter your address or APN to check if this home fits on your property
Enter your property street address or APN
Virtual Tour
Exterior & Construction
The large 8’x24′ front porch is covered by a reverse gable roof, giving the entire front of the cabin a cozy look and providing you and your family with the perfect place to spend the evening. Include the optional Prow Roof Lighting to highlight the gable of your porch and take that “wow” factor up a notch.
2×10 floor joists at 16″ on-center to be set on customers crawl space or full basement Insulated windows with low-e/argon glass (0.32 u-factor)
¾ tongue & groove sub-floor glued & nailed to joists Insulated fiberglass 6-panel entrance door
2×6 framed exterior walls – studs spaced 16″ on-center 7/16″ OSB roof sheathing with felt paper above
Walls sheathed with 7/16″ OSB and house wrapped Lifetime GAF/Elk architectural shingle roof (steel roof is optional)
White Pine tongue & groove log siding Vented eaves and ridge
Round log spindle railings on porches Wall Insulation: R-19
Two coats of exterior sealer applied in factory Ceiling Insulation: R-30 or R-38 (depending on roof system)
Kitchen
Bathroom
Interior
The main living area of the Alpine Cabin is similar in all the models. This includes a beautiful corner kitchen with your choice of wood plus a matching island and breakfast bar, as well as the vaulted ceiling in the livingroom.
Images of homes are solely for illustrative purposes and should not be relied upon. Images may not accurately represent the actual condition of a home as constructed, and may contain options which are not standard on all homes.