Other

Trove Homes
Affordable homes at your fingertips.
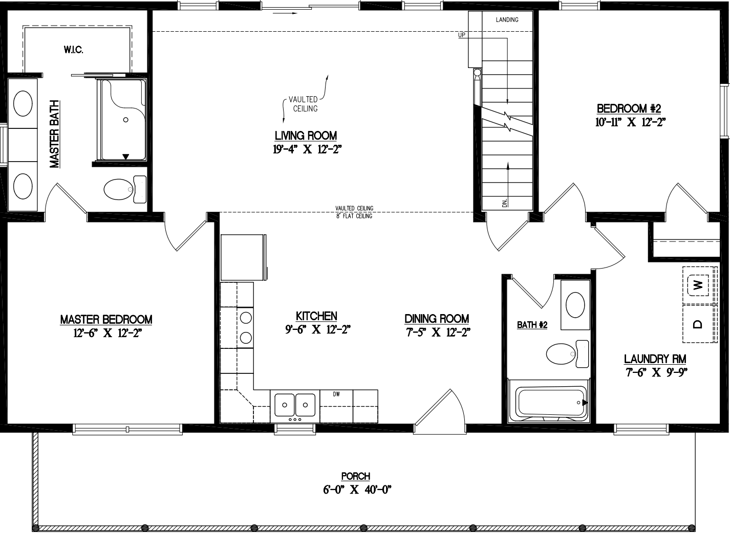
Are you looking for a log cabin that has an emphasis on the kitchen and living areas? The Timberline cabin is a beautiful 2 story cabin that is focused around exactly that. With the 20ft vaulted ceiling in the dining room, this Timberline cabin is all about creating a comfortable space for you and your guests. With the classy look of our knotty pine stairs your guests won’t feel banished to the second floor but invited to stay in a beautiful loft for some privacy and seclusion. Making this place the desired resting area when out of town travelers come to visit. Maybe this is your getaway cabin in the mountains, and now you have all the more room to take family and friends here for a weekend worth remembering. Any way you look at it, the Timberline log cabin with its vaulted ceiling will be the place to go for years to come! With floor plan options ranging in square footage from 1,607sq. ft to 2,368sq. ft., the Timberline cabin gives you the fabulous options you need to get a cabin that is the right size for you and the ones you love.
Enter your address or APN to check if this home fits on your property
Enter your property street address or APN
Construction
Dealer License #: DL1609773
Images of homes are solely for illustrative purposes and should not be relied upon. Images may not accurately represent the actual condition of a home as constructed, and may contain options which are not standard on all homes.