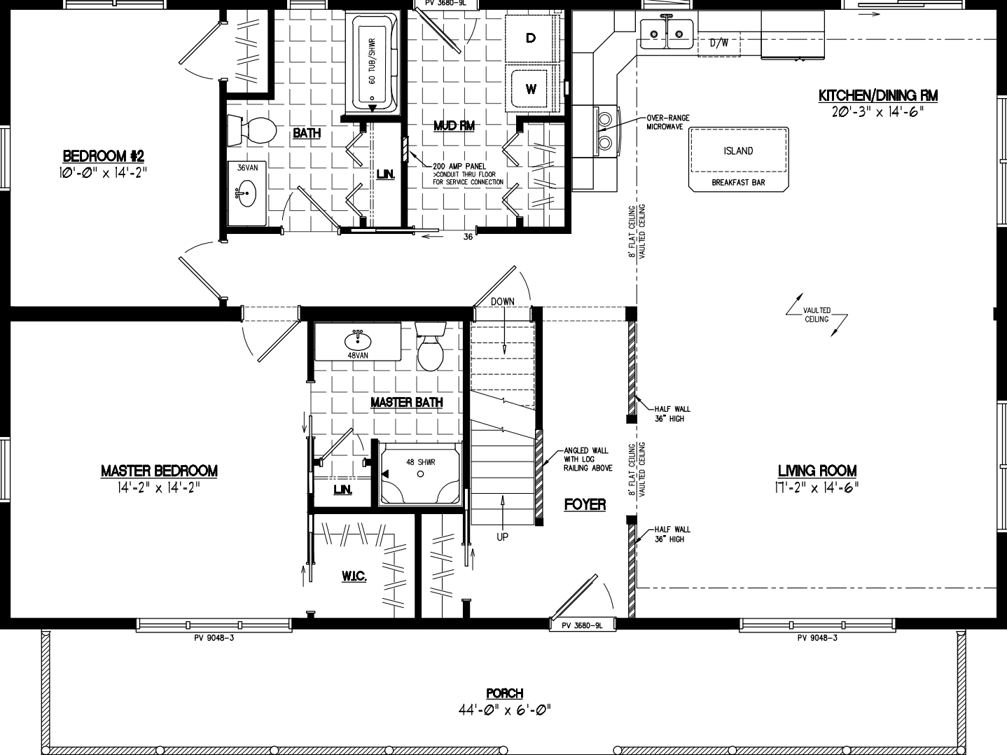
Homes | Mountaineer Deluxe 3048