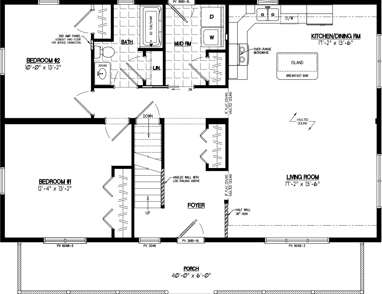
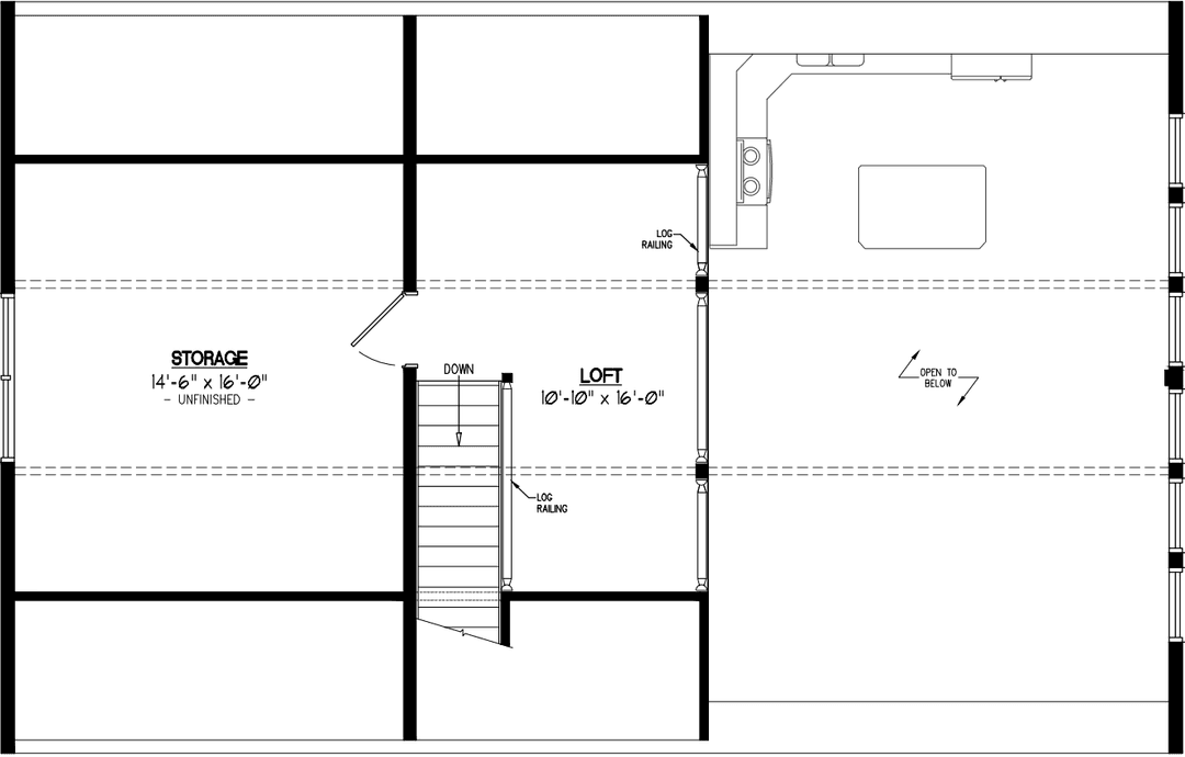
Homes | Mountaineer Deluxe 2844