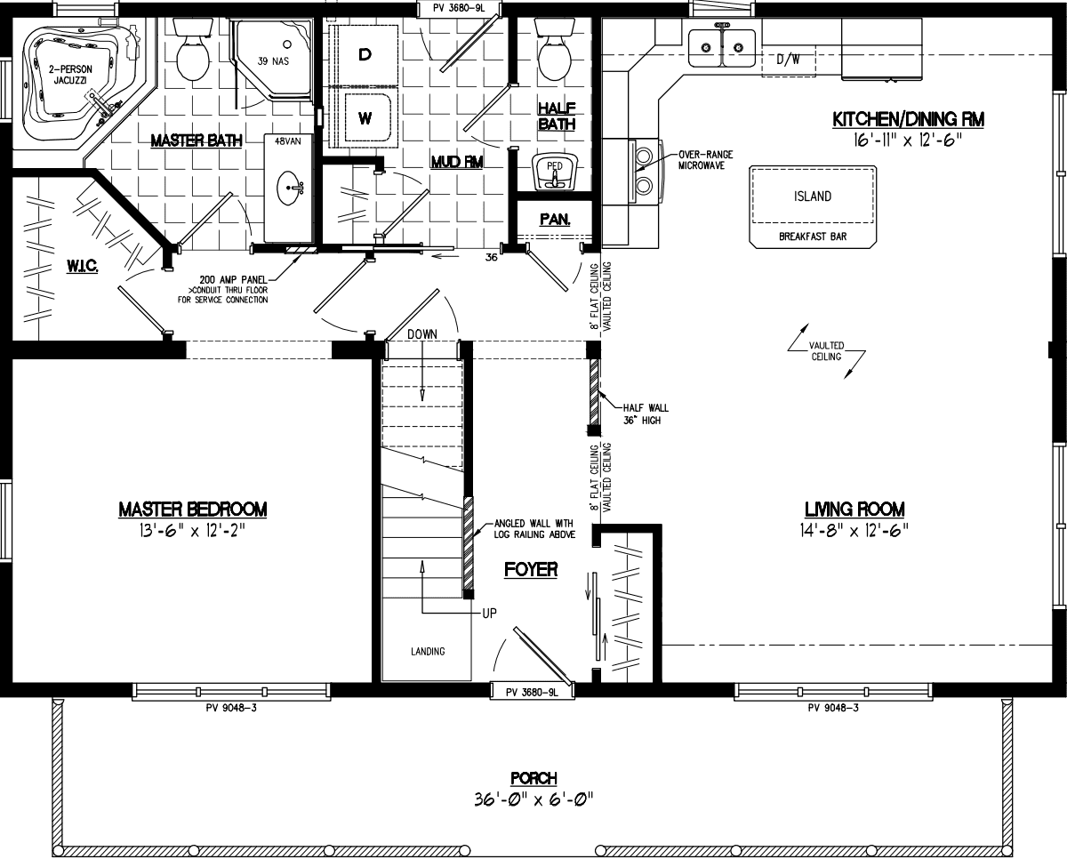
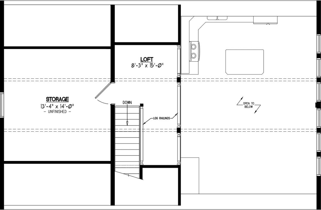
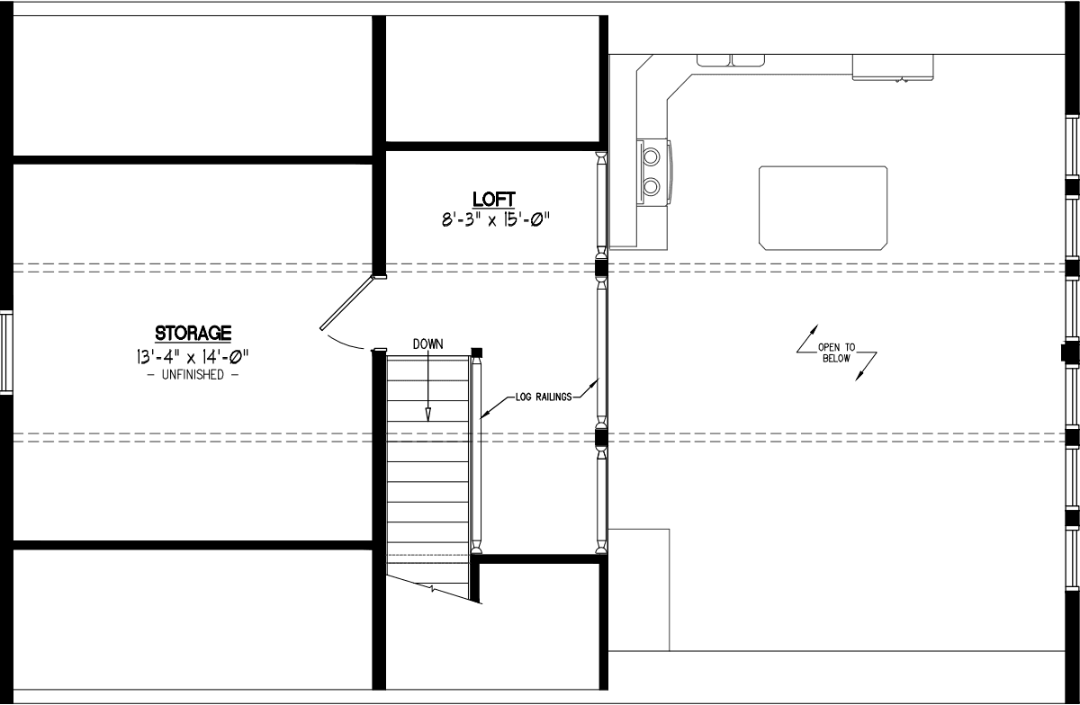
Homes | Mountaineer Deluxe 2640