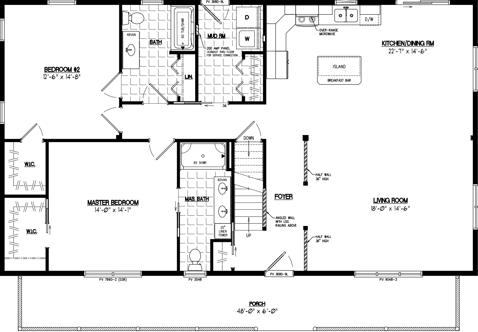
Homes | Mountaineer 3052