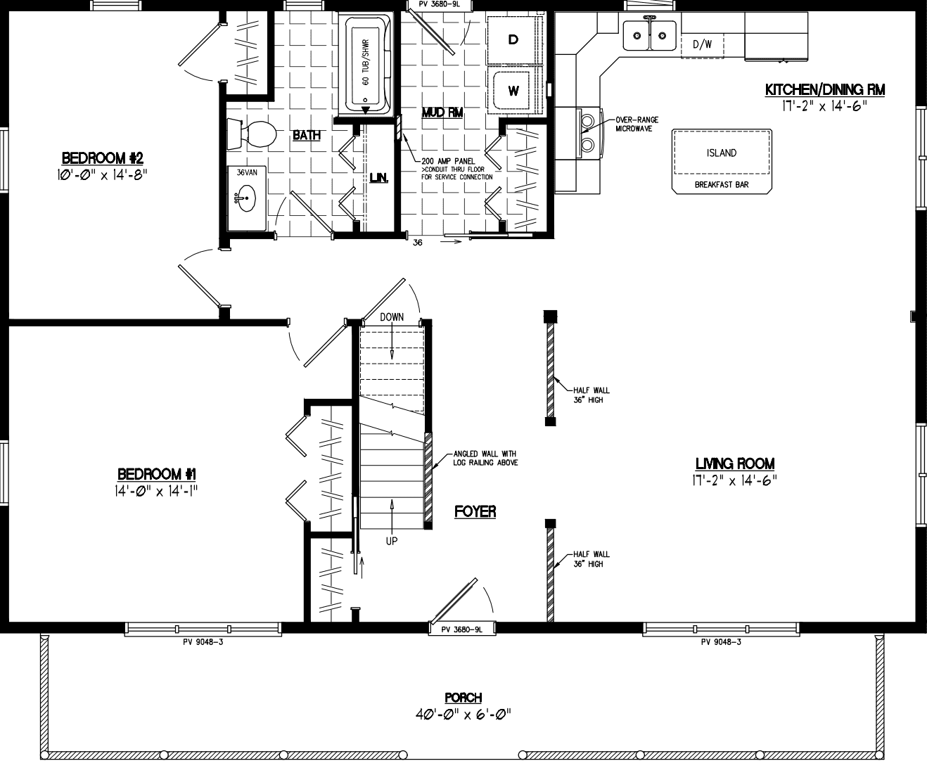
Homes | Mountaineer 3044