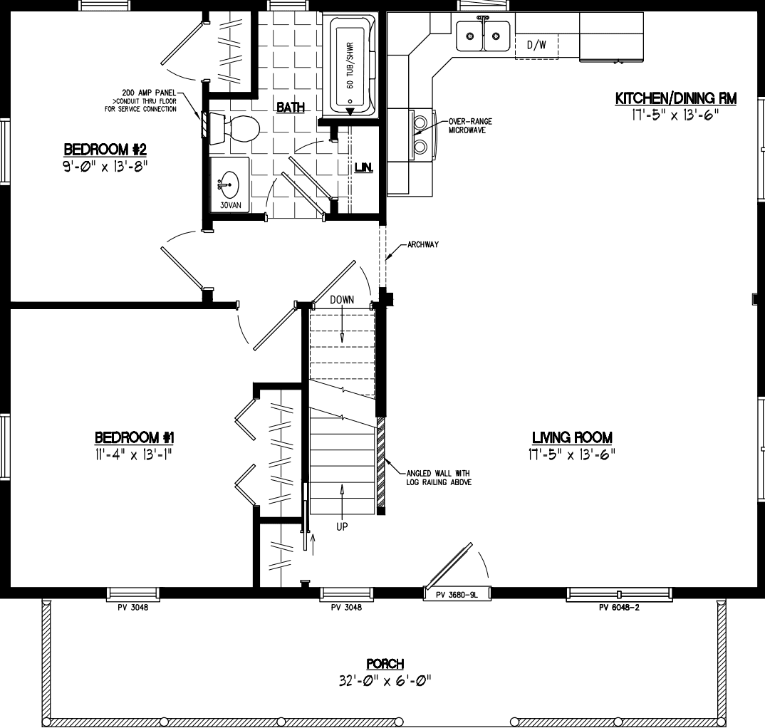
Homes | Mountaineer 2836