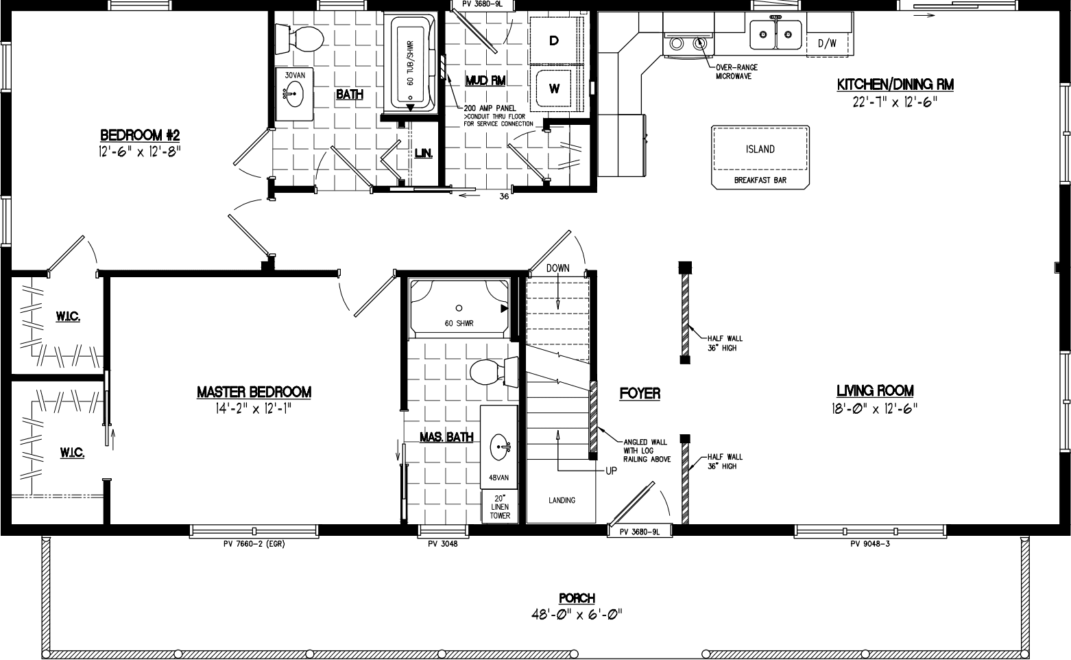
Homes | Mountaineer 2652