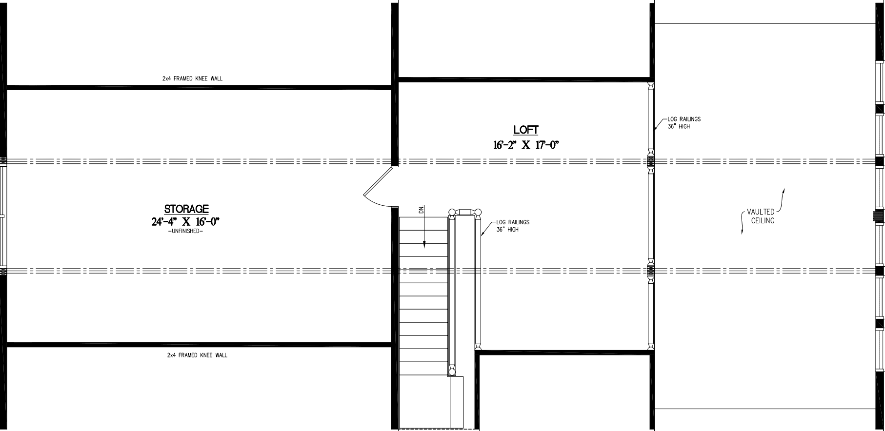
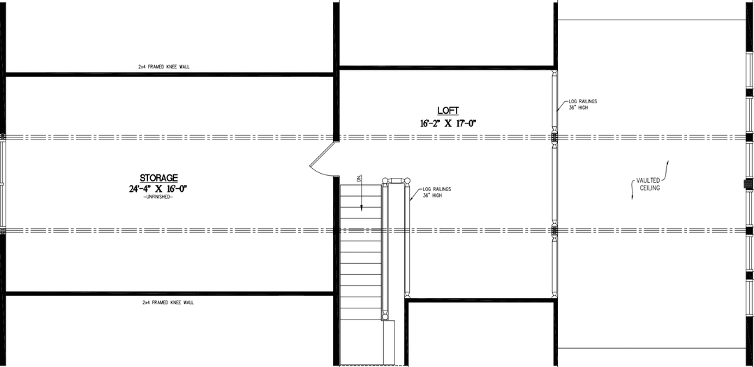
Homes | Glacier 2856