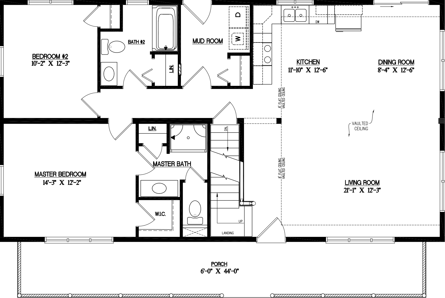
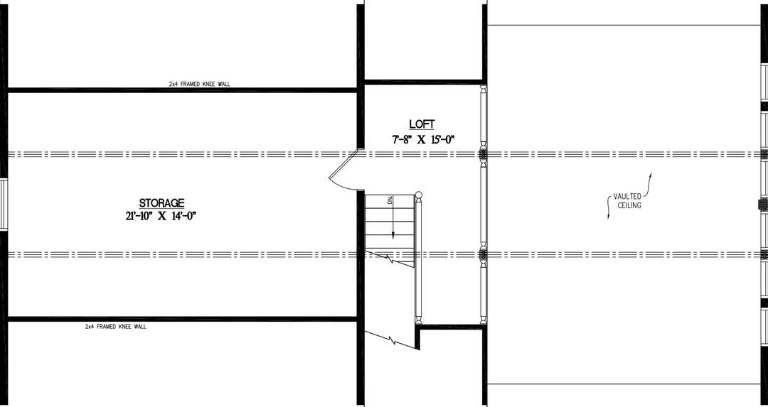
Homes | Glacier 2648