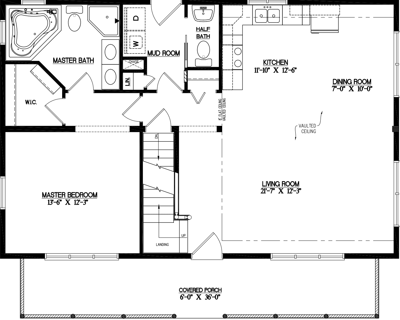
Homes | Glacier 2640