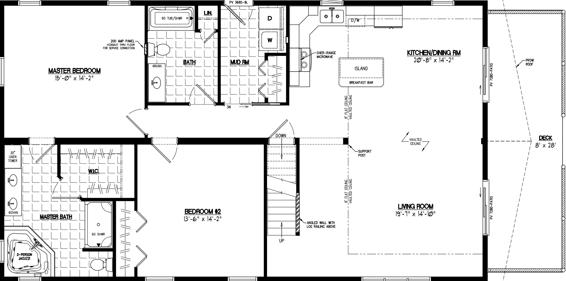
Homes | Chalet 3052