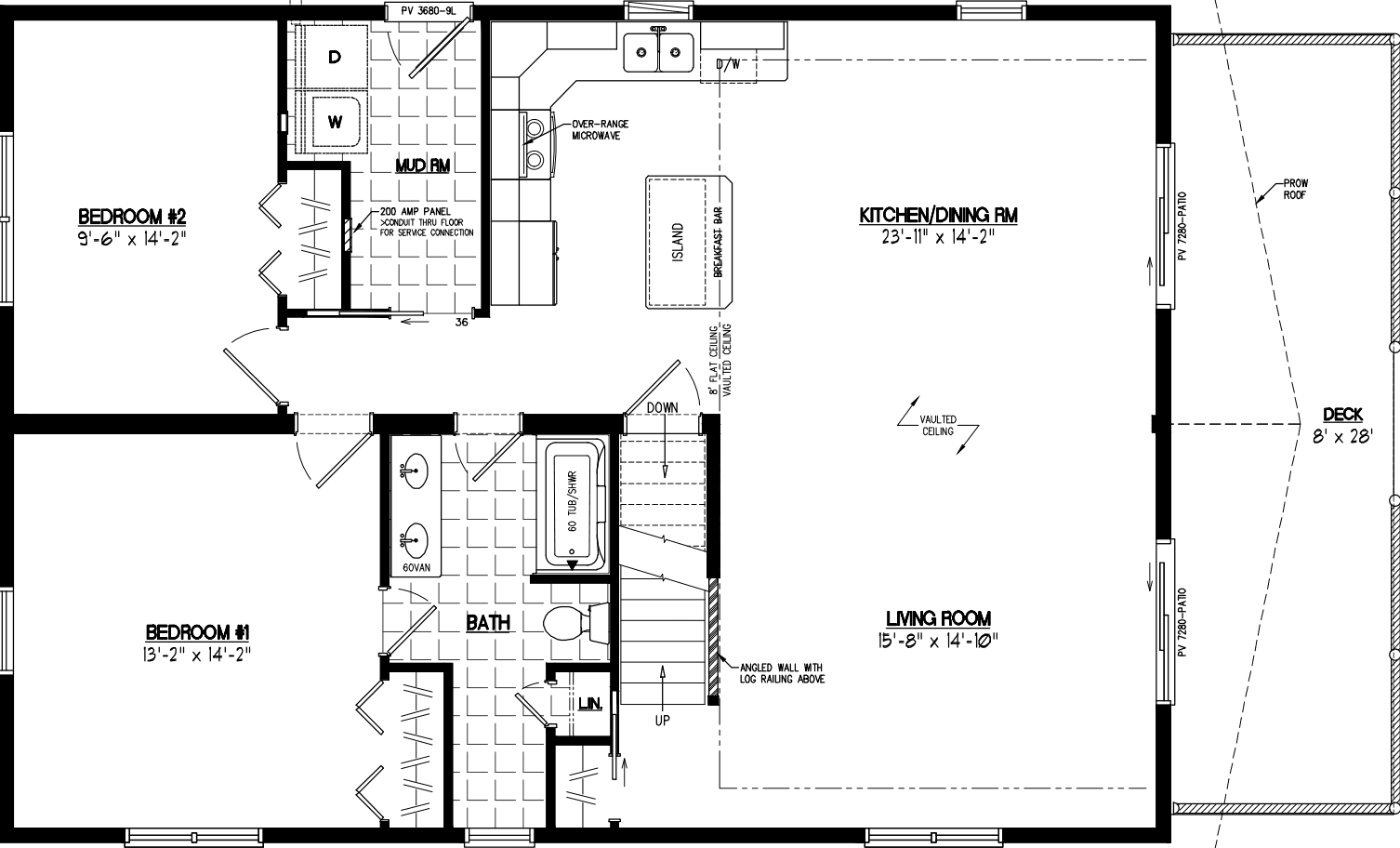
Homes | Chalet 3042