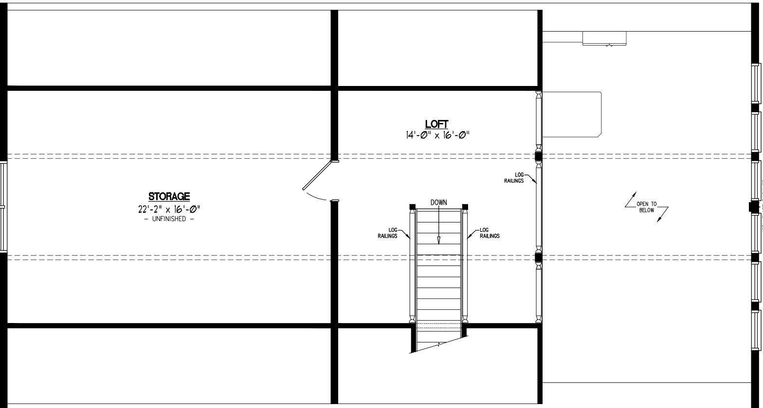
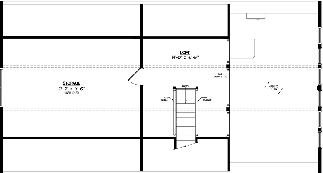
Homes | Chalet 2852