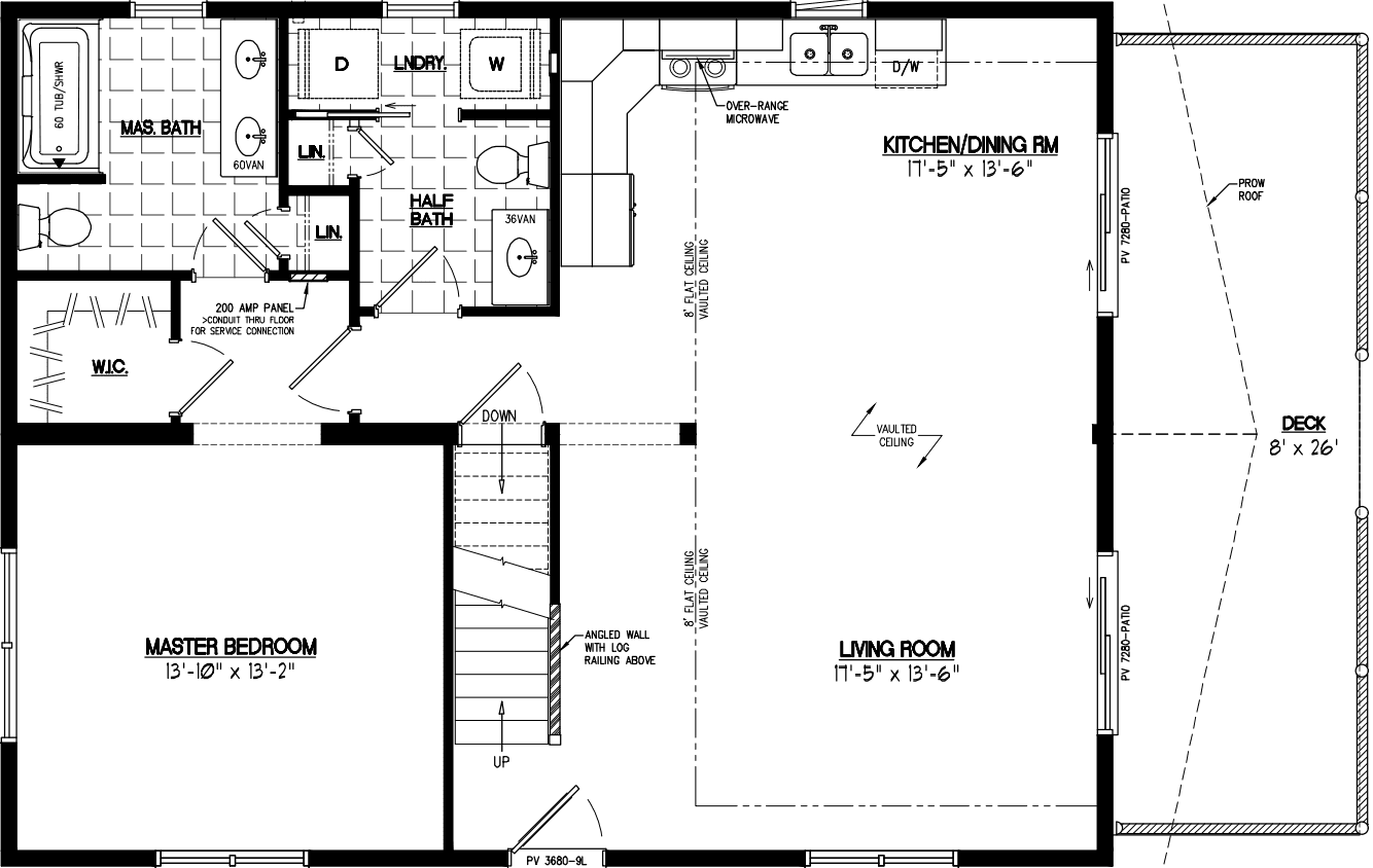
Homes | Chalet 2836