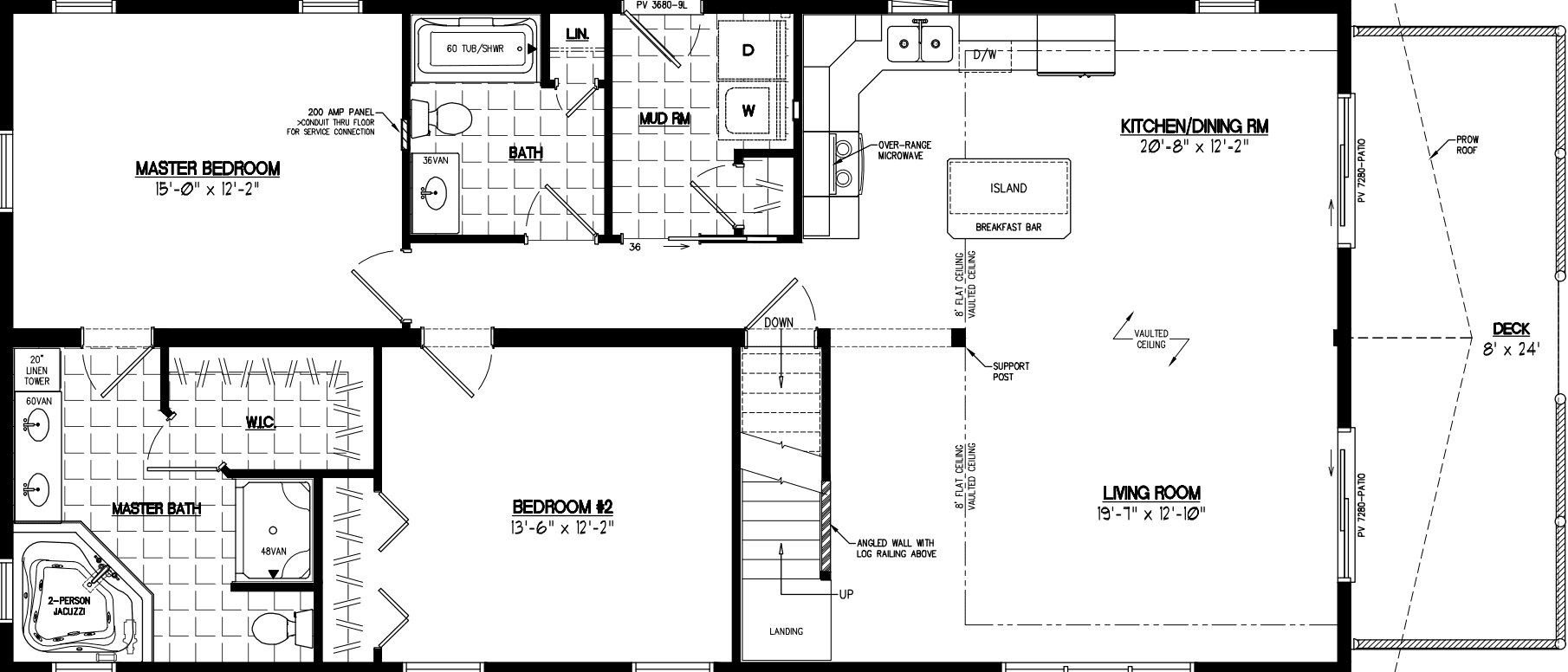
Homes | Chalet 2652