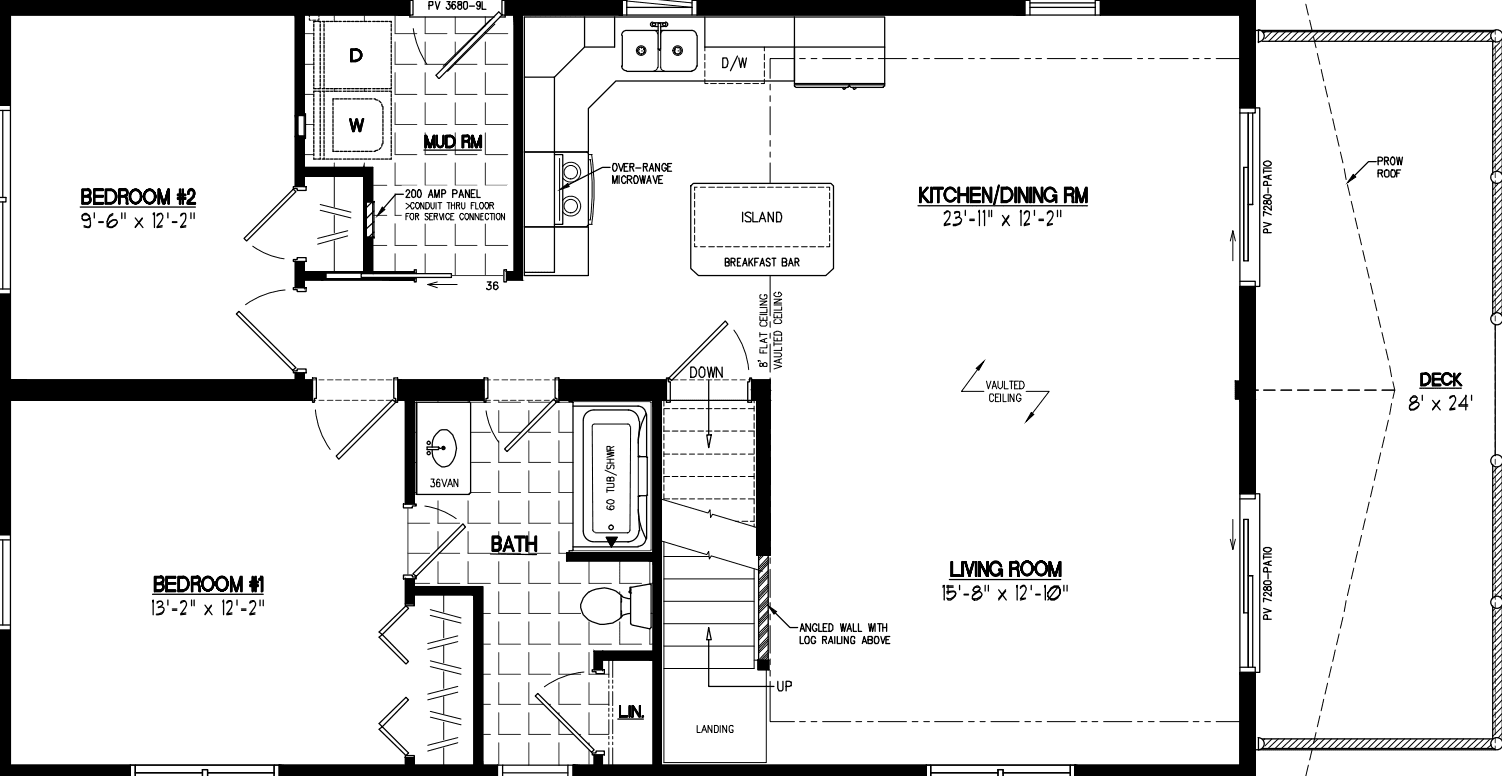
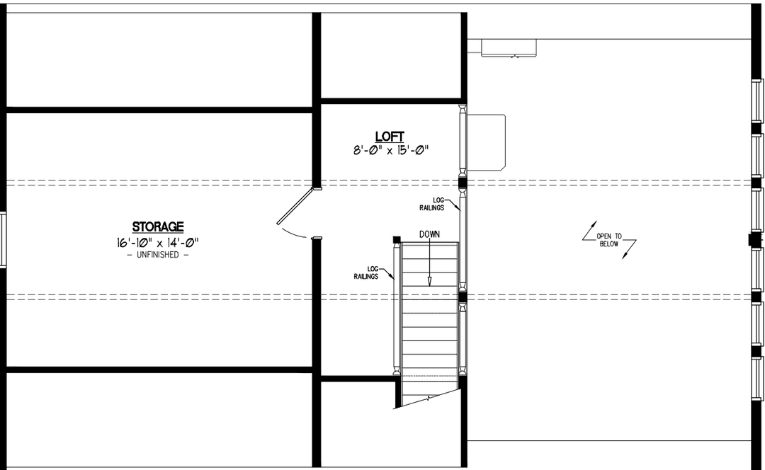
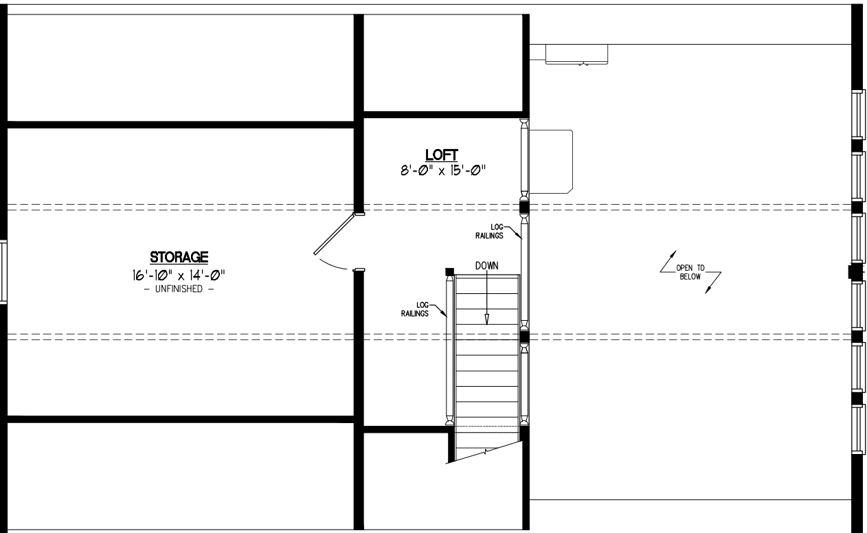
Homes | Chalet 2642