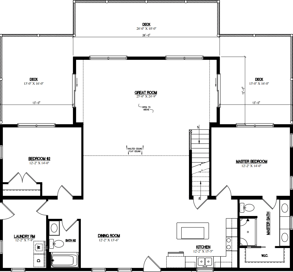
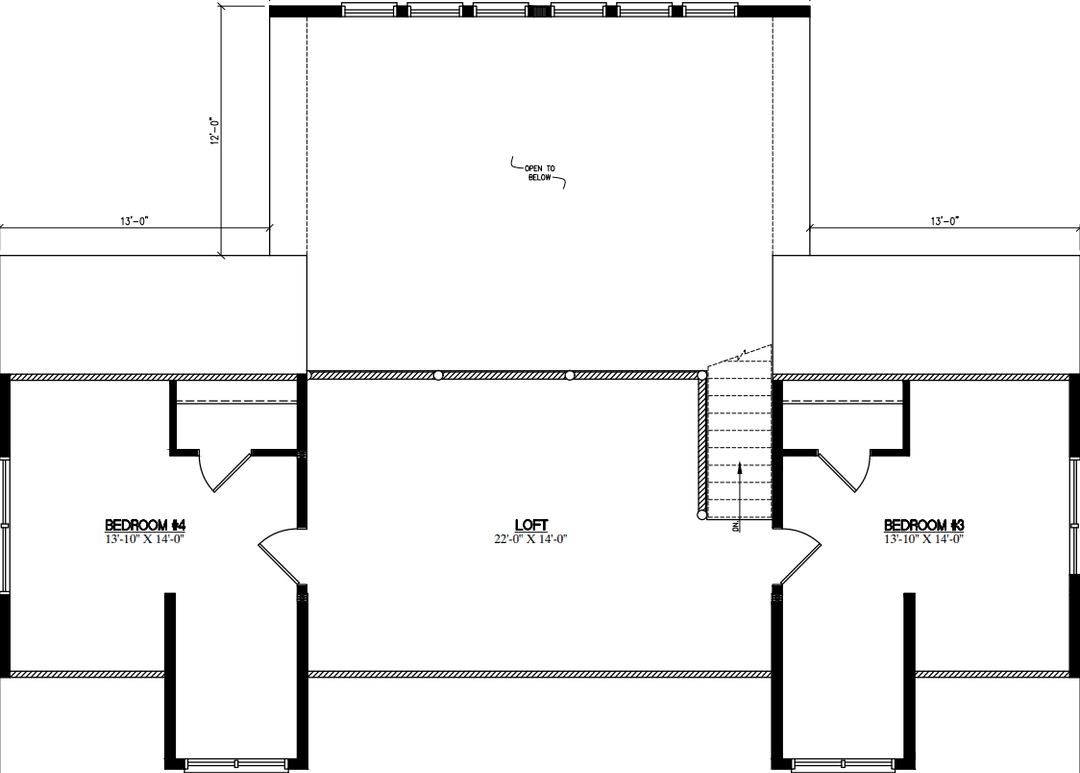
Homes | Canyon Lodge 2652