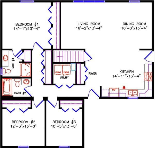
Homes | Spectrum 3620