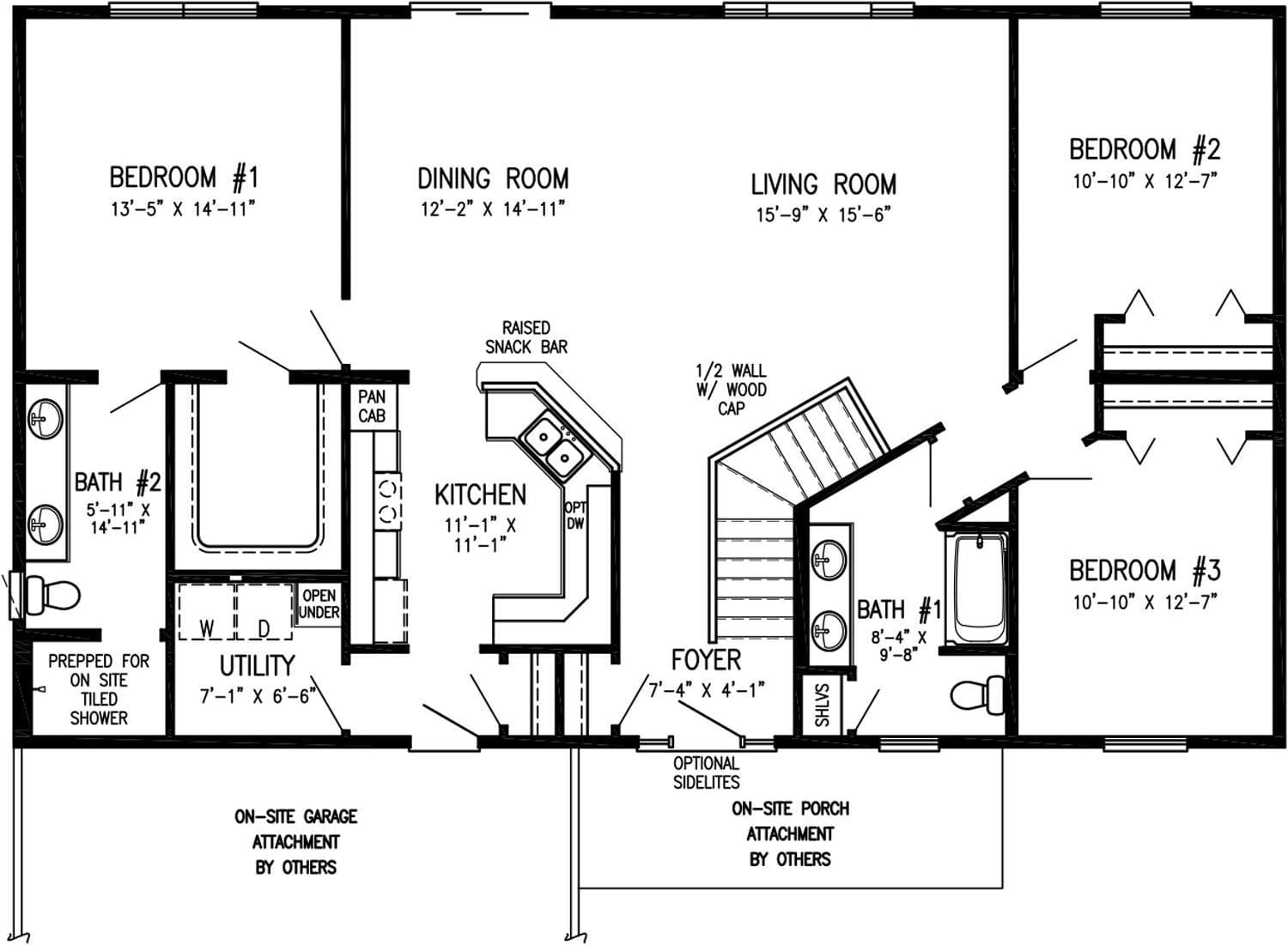
Homes | Belmont