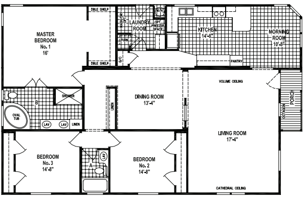
Homes | Custom Villa-3845CTB