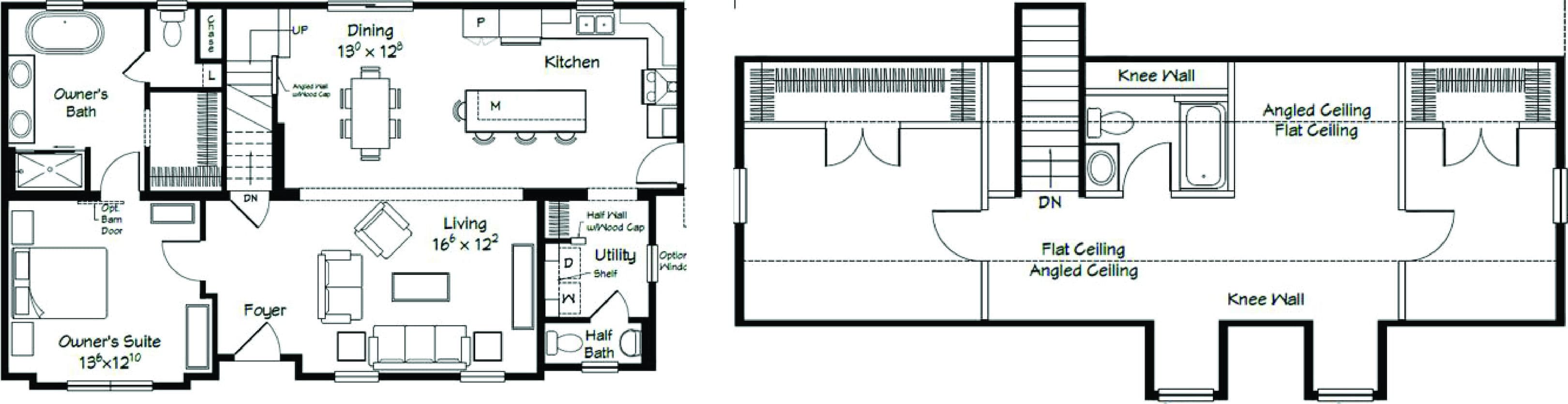
Homes | LeGrand Cape Cod 1940