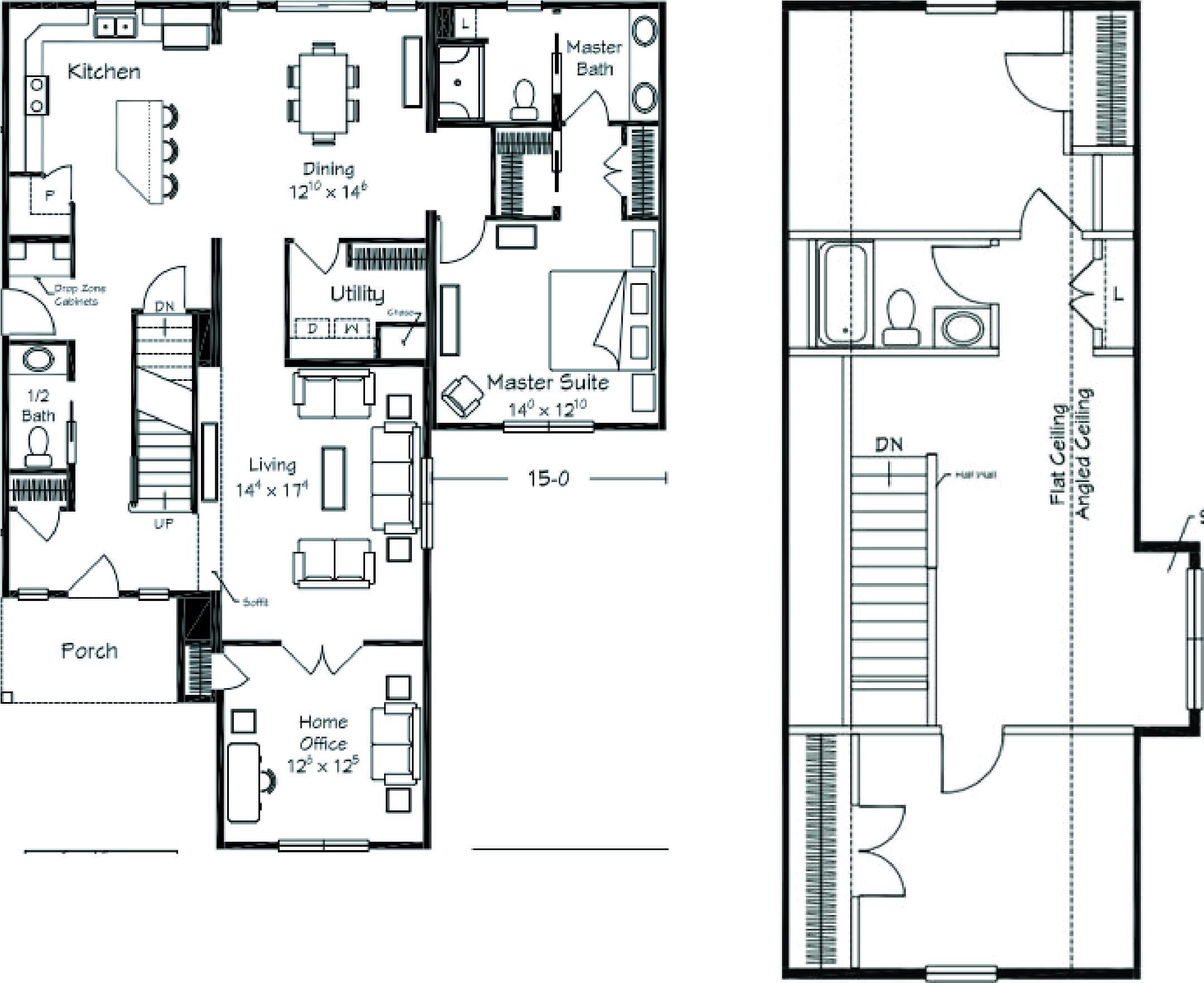
Homes | Forest Brook