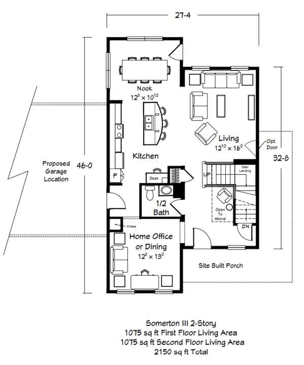
Homes | Somerton III