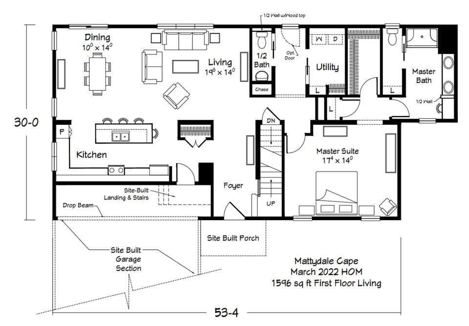
Homes | Mattydale II