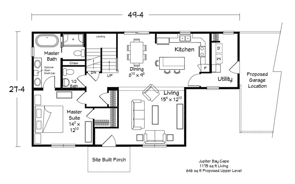
Homes | Jupiter Bay Cape Cod