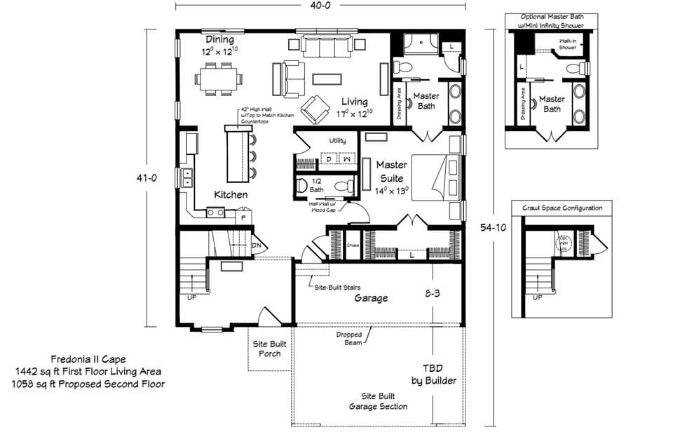
Homes | Fredonia II