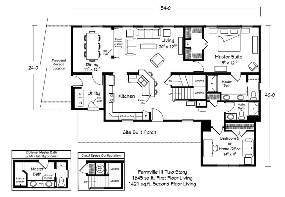
Homes | Farmville III