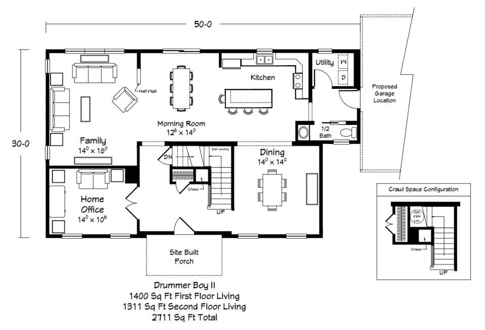
Homes | Drummer Boy II