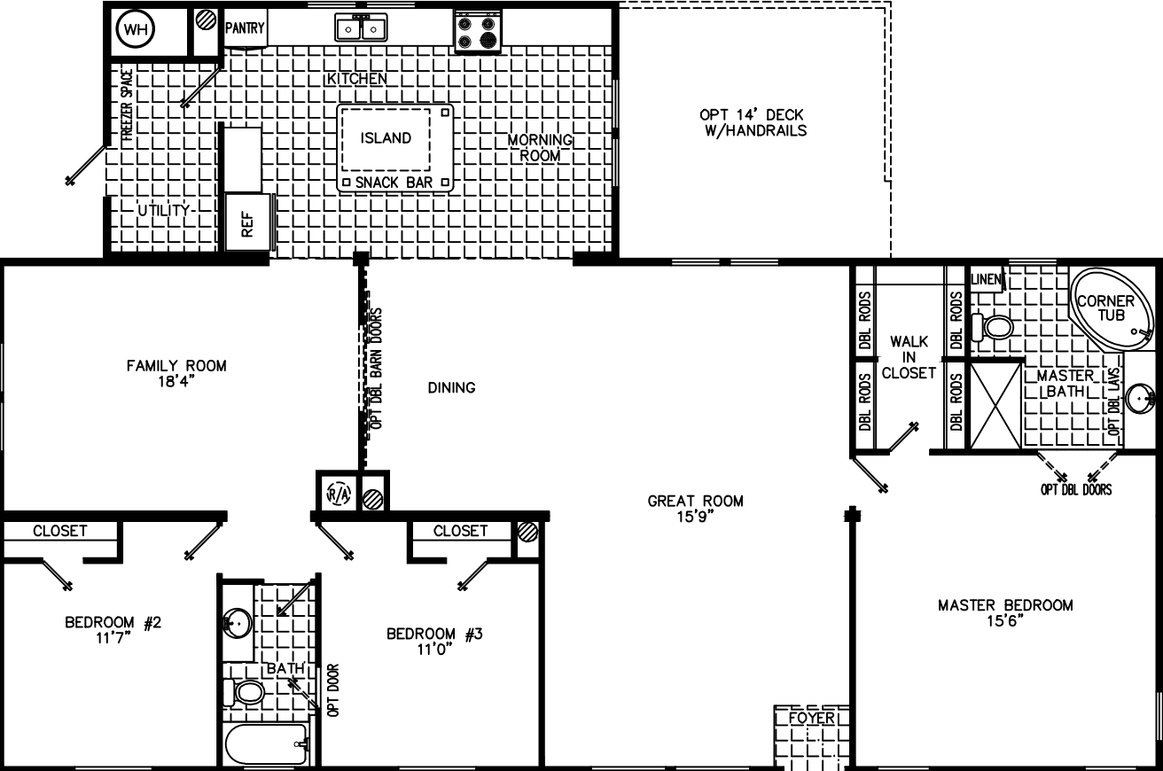
Homes | Tracy 3 BR 4260