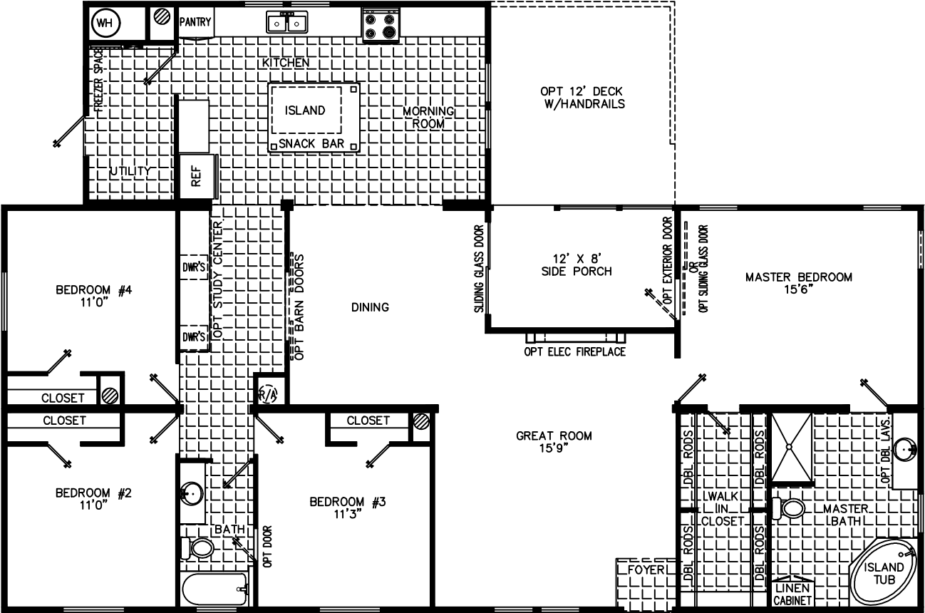
Homes | Tracy 4 Porch 4260